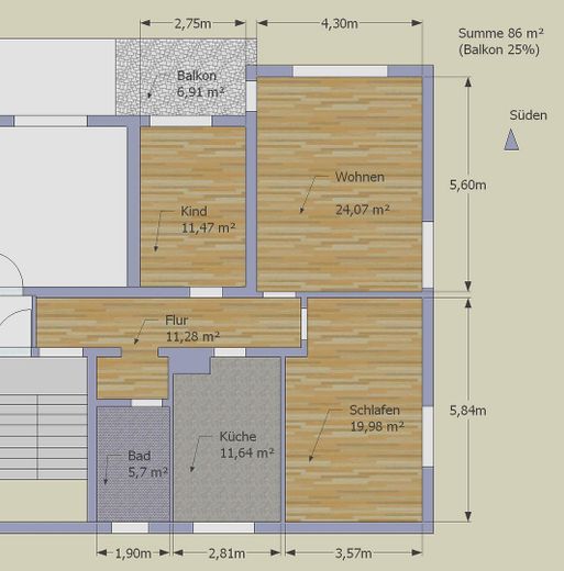
Grundriss
Flur
Wohnzimmer
Kinder-/Arbeitszimmer
Küche
Küche (Einbauküche)
Bad
Bad
Balkon

3-Zimmer Wohnung Hösbach 86 m²

Die vollständige Adresse erhalten Sie vom Anbieter
63768 Hösbach – Hösbach
Bayern
820 €
Kaltmiete
86 m²
Wohnfläche
3
Zimmer
TraumImmo-ID: TNTFYMA
Partner-ID: 433302
Partner-Objekt von: ohne-makler.net
Anbieter:
Privat von Robert Hasenstab

Anbieter kontaktieren

Information

  • Typ: Etagenwohnung
  • Etage: 1
  • Wohnfläche ca.: 86 m²
  • Bezugsfrei ab: 01.05.2026
  • Zimmer: 3
KellerBalkon

  • Baujahr: 1973
  • Zustand: WellKept
  • Heizart: CentralHeating
  • Brennart: Oil
  • Nutzfläche: 10.0
  • Badezimmer: 1.0
  • Heizkosten in Nebenkosten enthalten: True
  • Energieverbrauch beinhaltet warmes Wasser: True

Miete & Nebenkosten

Miete820 €
Nebenkosten225 € inkl. Heizkosten
Heizkosten110 €
Kaution2460€

Über dieses Traum-Apartment

Objektbeschreibung

Die Wohnung befindet sich im 1. OG eines Mehrfamilienhauses mit 7 Mietparteien. Die Wohnung hat dreifach verglaste Fenster mit elektrischen Rollläden sowie einer Lüftungsanlage mit Wärmerückgewinnung. Einbauküche mit Herd/Backofen, Spülmaschine und Kühl-/Gefrierkombination ist vorhanden und kann ggf. übernommen werden.. Zusätzlich gibt es einen Kellerraum mit ca. 10m² Grundfläche.
Die Wohnung ist zur Zeit vermietet und wird zum 01.05.2026 frei.
Die Wohnung wird unmöbliert vermietet.


Lage

ohne-makler.net
Anbieter:
Privat von Robert Hasenstab

Anbieter kontaktieren