Grundriss

Vorankündigung - Designhaus inkl. Grundstück am See

Die vollständige Adresse erhalten Sie vom Anbieter
92436 Bruck in der Oberpfalz – Bruck in der Oberpfalz
Bayern
220.000 €
Kaufpreis
50 m²
Wohnfläche
3
Zimmer
TraumImmo-ID: UPA4ZSX
Partner-ID: 431108
Partner-Objekt von: ohne-makler.net
Anbieter:
Angebot von Roland Göken

Anbieter kontaktieren

Information

  • Typ: Einfamilienhaus
  • Wohnfläche ca.: 50 m²
  • Bezugsfrei ab: 01.07.2026
  • Zimmer: 3
BarrierefreiGarten

  • Grundstücksfläche: 300.0
  • Baujahr: 2026
  • Zustand: FirstTimeUse
  • Heizart: FloorHeating
  • Stockwerke: 1
  • Nutzfläche: 10.0
  • Badezimmer: 1.0

Kaufpreis & Kosten

Kaufpreis220.000 €
Provisionkeine Provision für Käufer

Über dieses Traum-Haus

Objektbeschreibung

Vorankündigung:
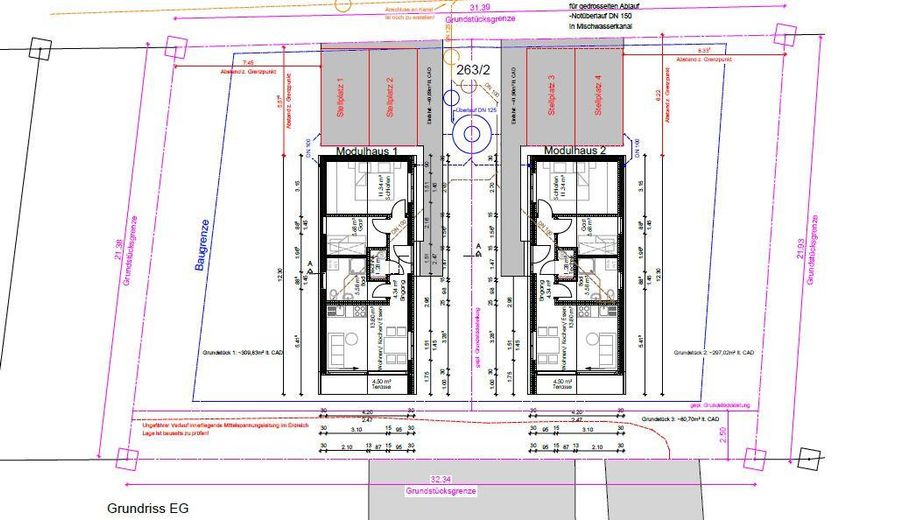
50 qm Design Fertighaus mit ca. 300 qm Grundstück am See in Bruck in der Oberpfalz.
Es sind 2 Fertighäuser geplant. Diese sind projektiert für Fertigstellung ca. Juni / Juli 2026.
Die Grundstücke können auch ohne Fertighäuser erworben werden. Sollten Sie bereits über ein Grundstück verfügen, können Sie selbstverständlich unsere Fertighäuser auch ohne Grundstück erwerben.
Die Visualisierungen der Fertighäuser sind Beispiele. Die Fertighäuser können nach Ihren Wünschen gebaut und auf Wunsch auch mit Inneneinrichtung angeboten werden.
Der Kaufpreis von 220.000 Euro bezieht sich auf einen unverbindlichen Richtwert eines Fertighauses nach EH 55 (nach GEG) mit Standardausstattung, Standardfenster und Fußbodenheizung, ohne Inneneinrichtung und mit einer Grundstückgröße von ca. 300 qm in der oben beschriebenen Lage. Die Fertighäuser können auf den jew. Kundenwunsch angepasst werden und auch mit EH 40 ausgeliefert werden. Für weitere Details und konkrete Angebotspreise kontaktieren Sie uns gerne.

Dies ist ein Angebot von MeinDesignhaus powered by DEGOS Immobilien Projektentwicklung .
DEGOS Immobilien Projektentwicklung ist eine Zweigniederlassung der DEGOS Dental GmbH, Bayernstr. 10a, 93128 Regenstauf.


Ausstattung

Die Ausstattung kann nach Kundenwunsch angepasst werden.


Lage

Lagebeschreibung

Seenahes Grundstück in Bruck in der Oberpfalz

ohne-makler.net
Anbieter:
Angebot von Roland Göken

Anbieter kontaktieren