| Kaufpreis | 305.000 € |
|---|---|
| Provision | keine Provision für Käufer |
Diese attraktive 3-Zimmer-Erdgeschosswohnung befindet sich in einem gepflegten Mehrfamilienhaus aus dem Jahr 1995 in 89179 Beimerstetten.
Die Wohnung bietet eine Wohnfläche von ca. 80,5 m², bestehend aus 71,46 m² Innenfläche und einer hochwertig gestalteten Terrasse, die aufgrund ihrer Ausstattung zu 50 % in die Wohnfläche einbezogen wird.
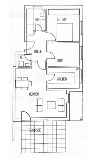
Raumaufteilung:
- Großzügige Diele
- Wohnzimmer: 28,09 m²
- Schlafzimmer: 13,21 m²
- Kinderzimmer: 9,58 m²
- Küche: 8,56 m²
- Bad: 5,56 m²
- Separates WC: 2,09 m²
Zur Wohnung gehören zwei Stellplätze, einer davon mit Carport.
Beheizt wird das Gebäude über eine Ölheizung. Die Böden sind mit Fliesen und Parkett ausgestattet. Der Gesamtzustand ist gepflegt.
Terrasse & Garten
- Hochwertige Terrasse (Steinboden, Beleuchtung), teilweise durch Hecke als Sichtschutz eingerahmt, mit einem kleinen Rasenbereich dazwischen
- Zusätzlich Gartenanteil zur Wohnung gehörend
- Terrasse wird aufgrund der hochwertigen Ausstattung 50 % in die Wohnfläche einbezogen
Besonderheiten
- Ruhige, familienfreundliche Lage
- Hochwertige Terrasse mit Steinboden, Beleuchtung, teilweisem Sichtschutz durch Hecke und Rasenbereich
- Zusätzlicher Gartenanteil
- Zwei Stellplätze, davon einer überdacht
- Gepflegter Gesamtzustand
- Gute Anbindung an A8, ÖPNV, Grundschule und Kita in direkter Nähe
- Supermarkt (Netto), Zahnärzte und Zahnärztin, Friseursalon, Fitnessstudio uvm. in Beimerstetten vorhanden
Die Wohnung liegt in einer ruhigen Wohnstraße in Beimerstetten, nur wenige Schritte vom Bahnhof und Bushaltestellen entfernt.
Grundschule und Kindergarten befinden sich in unmittelbarer Nähe (ca. 100 m Luftlinie).
Die Umgebung ist familienfreundlich und verkehrstechnisch gut angebunden - ideal für Berufspendler in Richtung Ulm oder Geislingen. Zur Auffahrt auf die Autobahn A8 benötigt man gerade einmal 5 Minuten.