Vorderansicht gr. Halle+ Büro
Große Halle Seitentor
Große Halle Rückansicht rechts
Große Halle Rückansicht links
Große Halle- Innenraum 2
Kleine Halle mit Hofraum
Lageplan Grundstück
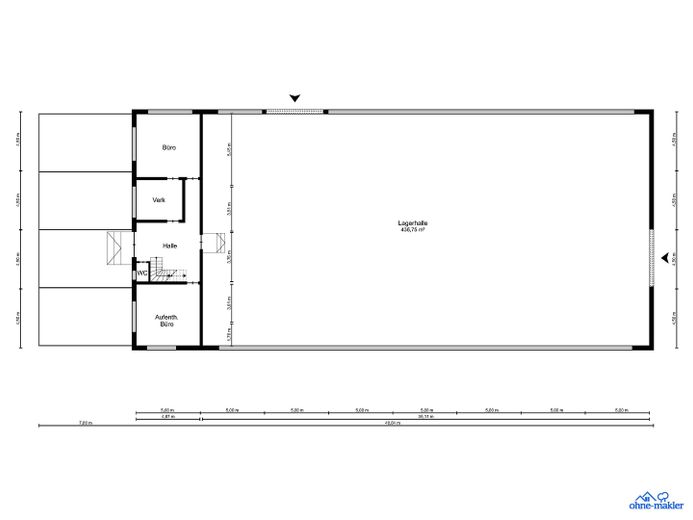
Große Halle Grundfläche
Große Halle Schnitt
Kleine Halle Schnitt
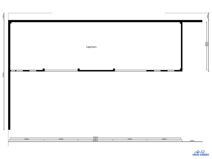
Kleine Halle Grundfläche
Große Halle - Innenraum 1
Seitenansicht gr. Halle
Freifläche bei kl. Halle
Gewerbe-Halle mit Bürotrakt

vielseitig nutzbare Gewerbe-Halle in Ofterdingen zu vermieten

Die vollständige Adresse erhalten Sie vom Anbieter
72131 Ofterdingen – Ofterdingen
Baden-Württemberg
3200 €
Kaltmiete
TraumImmo-ID: VYQNMCW
Partner-ID: 404850
Partner-Objekt von: ohne-makler.net
Anbieter:
Privat von Ingrid Metzger

Telefon:
0172 8564534

Anbieter kontaktieren

Information

  • Typ: Halle
  • Etage: 0
  • Bezugsfrei ab: Nach Vereinbarung
Gäste-WC

  • Baujahr: 1971
  • Zustand: WellKept
  • Brennart: Electricity
  • Stockwerke: 1
  • Heizkosten in Nebenkosten enthalten: True

Miete & Nebenkosten

Miete3200 €
Nebenkosten300 € inkl. Heizkosten
Kaution6400€
Provisionkeine Provision für Käufer

Über dieses Traum-Industrieobjekt

Objektbeschreibung

Bei diesem Objekt handelt es sich um zwei vielseitig nutzbare Hallen. Ideal für Produktion, Lagerung und Ausstellung oder Verkauf.
Die größere Halle beinhaltet eine Lagerfläche von ca. 630 m² und Räume für Büro und Aufenthalt mit einer Fläche von ca. 40 m²
Die kleinere Halle an der Rückseite des Grundstücks besteht aus einer Nutzfläche von ca. 162 m².
Die Hallenteile können zusammen oder getrennt gemietet werden.
Die Freiflächen sind teilweise vermietet.


Ausstattung

Es handelt sich um zwei Kalthallen. Die Büroräume können bei Bedarf mit elektrischem Strom beheizt werden.
Energieausweis ist in Arbeit und wird bei der Besichtigung vorgelegt!


Sonstiges

Räume im Obergeschoß des Bürogebäudes können bei Bedarf zusätzlich angemietet werden, diese sind z.B. als Betriebsleiterwohnung nutzbar.

Der angegeben Mietpreis versteht sich zzgl. Nebenkosten sowie zzgl. 19 % MwSt aus dem Gesamtmietpreis (Kaltmiete + Nebenkosten).


Lage

Lagebeschreibung

Das Mietobjeket liegt in der Gemeinde Ofterdingen in einem Mischgebiet. Ofterdingen ist eine Gemeinde im Landkreis Tübingen in Baden-Württemberg.

Umgebung: Die Straße verläuft durch ein gemischtes Wohn- und Gewerbegebiet. In der Nähe befinden sich kleine Betriebe wie eine Karosserieinstandsetzung, eine Druckerei, ein Brennholzhandel und eine Pizzeria unmittelbar in der Nachbarschaft zum Objekt.
Verkehrsanbindung: Die Straße ist gut erreichbar und bietet eine ruhige Zufahrt. Die Höchstgeschwindigkeit ist begrenzt, was zur Sicherheit und Standortqualität beiträgt.

Geografische Lage: Ofterdingen liegt südlich von Tübingen und ist eingebettet in die reizvolle Landschaft des Steinlachtals, mit guter Anbindung an die B27 Richtung Tübingen und Balingen.

ohne-makler.net
Anbieter:
Privat von Ingrid Metzger

Telefon:
0172 8564534

Anbieter kontaktieren