Außen - Eingang & Schaufenster
Laden / Büro & Schaufenster
Laden / Büro 80qm
WC / Abstellbereich
Lager von außen
Lager von innen 34qm
Ladenfläche & Lager
2 Kellerräume
Außenansicht

Ladengeschäft / Büro zentral in Lörrach zu verkaufen

Baslerstrasse 55
79540 Lörrach – Lörrach
Baden-Württemberg
329.000 €
Kaufpreis
TraumImmo-ID: WTXPK6E
Partner-ID: 428494
Partner-Objekt von: ohne-makler.net
Anbieter:
Privat vom Eigentümer

Anbieter kontaktieren

Information

  • Typ: Laden
  • Etage: 0
  • Bezugsfrei ab: Nach Vereinbarung
KellerGäste-WC

  • Baujahr: 1951
  • Zustand: WellKept
  • Heizart: CentralHeating
  • Brennart: Gas
  • Stockwerke: 1

Kaufpreis & Kosten

Kaufpreis329.000 €
Provisionkeine Provision für Käufer

Über diesen Traum-Laden

Objektbeschreibung

Zum Verkauf steht eine vielseitig nutzbare Gewerbeimmobilie in erstklassiger Lage von Lörrach, nur wenige Minuten von der Schweizer Grenze zu Riehen entfernt.

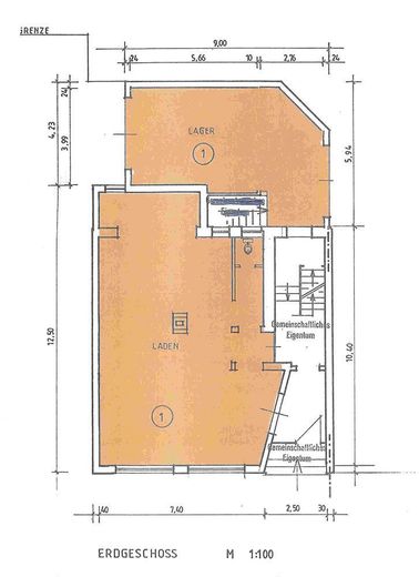
Die Einheit verfügt über einen separaten Eingang und erstreckt sich über 114 m². Die Hauptfläche von ca. 80 m² umfasst die Ladenfläche, ein WC sowie einen kleinen Abstellbereich. Zusätzlich gehören eine großzügige Lagerfläche von 34 m² im Hinterhof sowie zwei Kellerräume mit 12,76 m² zur Immobilie. Aktuell beträgt die Mieteinnahme 1.470,- €.

„Preis inklusive geplanter Fassaden- und Dachsanierung sowie Installation einer Photovoltaikanlage im Frühjahr 2026 (Kosten: ca. 32.000 €), bereits bezahlt.“

Ideal für:
• Ladenfläche (z. B. Lebensmittel, Modegeschäft, Discounter etc.)
• Büro, Praxis oder Handwerksbetrieb (z. B. Versicherung, Steuerberatung, Elektrotechnik etc.)
• Einzelhandel oder Dienstleistungsgewerbe (z. B. Reisebüro, Kosmetikstudio, Friseur etc.)
• Kapitalanleger – aktuell ist Ladenfläche vermietet an Kosmetikstudio und das Lager an privat


Ausstattung

• Separater eigener Eingang
• Ladenfläche ca. 80 m²
• Lagerfläche im Hinterhof ca. 34 m²
• zzgl. zwei Kellerräume mit 12,76 m²
• WC / Abstellbereich vorhanden
• Energieausweis liegt vor


Sonstiges

- Gewerbeeinheit wird provisionsfrei zu verkauft
- Mieteinnahmen derzeit 1.470 €

Interessiert? Kontaktieren Sie uns für weitere Informationen oder zur Vereinbarung eines Besichtigungstermins


Lage

Lagebeschreibung

• Top-Standort in Lörrach mit ca. 50.000 Einwohnern
• Unmittelbare Nähe zur Schweizer Grenze (Lörrach/Riehen)
• Hervorragende Verkehrsanbindung – direkte Lage an einer stark frequentierten Hauptstraße
• Nur wenige Gehminuten zu Bus- und Bahnverbindungen

Dank der exzellenten Lage an der Baslerstraße erhält Ihr Unternehmen maximale Sichtbarkeit.

ohne-makler.net
Anbieter:
Privat vom Eigentümer

Anbieter kontaktieren