Büro Ansicht 1
Herren WC
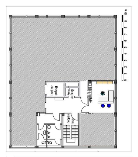
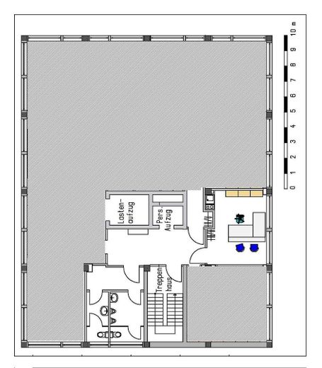
Grundriß
Gebäude
Büro Ansicht 2
Damen WC

Kleines Büro mit toller Aussicht im Nebgen-Haus -List - 4. OG

Mengendamm 12
30177 Hannover – List
Niedersachsen
319 €
Kaltmiete
TraumImmo-ID: XWNV97M
Partner-ID: 403155
Partner-Objekt von: ohne-makler.net
Anbieter:
Privat von Robin-Christopher Meyer

Anbieter kontaktieren

Information

  • Typ: Büroetage
  • Etage: 4
  • Bezugsfrei ab: Nach Vereinbarung

  • Baujahr: 1969
  • Zustand: FullyRenovated
  • Heizart: CentralHeating
  • Brennart: Oil
  • Stockwerke: 5
  • Heizkosten in Nebenkosten enthalten: True

Miete & Nebenkosten

Miete319 €
Nebenkosten120 € inkl. Heizkosten
Heizkosten50 €
Kaution500€
Provisionkeine Provision für Käufer

Über dieses Traum-Büro

Objektbeschreibung

Das repräsentative 5 stöckige Gebäude wurde als Verwaltungsgebäude der Firma Nebgen errichtet, welche bis in die 80er Jahre die bekannten Neben-Buden in Hannover betrieb.

Die vakanten Fläche befinden sich in der 4. Etage auf der rechten Seite. Aussicht Richtung Westen.

Die weiteren Mieter des Gebäudes sind Ingenieurbüros, Werbe- und Internetagenturen, EDV Unternehmen etc.

Aufgeteilt ist das Büro in 1 Büroraum mit einer kleinen Tee-Küche.

Damen und Herren-WCs sind etagenweit vorhanden.

Im Gebäude liegt neben VDSL auch ein neuer Glasfaser Anschluss für Internet mit 1.000 MBit an.

Preise verstehen sich netto zzgl 19% MwSt


Ausstattung

Der Raum ist hell und freundlich mit toller Aussicht.

EDV Verkabelung in Brüstungskabelkanälen ist vorhanden.

Ein Parkplatz kann bei Bedarf angemietet werden..

Das Gebäude verfügt über einen Personen- und Lastenaufzug.

Ferner:
- Große doppelverglaste Fenster
- Gegensprechanlage
- getrennte WC – Einheiten
- Küche
- Brennwert-Öl-Zentral-Heizung

Im Gebäude liegt VDSL sowie ein neuer Glasfaser Anschluss der Telekom mit Internetgeschwindigkeit von 1 GBit an.


Sonstiges

Robin-Christopher Meyer
Wilhelmstr. 26
31582 Nienburg
Tel 0511-10531930
email: info@mobilize.de
Steuernummer: 34/129/06036

Preise verstehen sich netto zzgl 19% MwSt


Lage

Lagebeschreibung

Das Bürohaus liegt in der List etwas nördlich des Lister Kirchweges neben der BMW Niederlassung.

Die Innenstadt ist wenige Kilometer entfernt, die Straßenbahn fährt in rund 5 Minuten ab der fußläufig erreichbaren Haltestelle "Vier-Grenzen" direkt zum Hauptbahnhof.

Anbindung an den Fernverkehr über die Podbielskistraße oder Vahrenwalder Landstraße.

ohne-makler.net
Anbieter:
Privat von Robin-Christopher Meyer

Anbieter kontaktieren