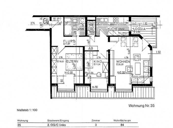
Grundriss
Loggia
Küche
Schlafzimmer
WC
Außenansicht
Wohnungslage
Wohnzimmer
Wohnzimmer
Flur
Küche
Arbeitzimmer
Arbeitszimmer
Schlafzimmer
Bad
Flur
Treppenhaus
Eingang
Energiebedarfsausweis
Eingang Treppenhaus

Beutelsbach: Lichtdurchflutete 3,5-Zi-DG-Wohnung und TG-Stellplatz

Die vollständige Adresse erhalten Sie vom Anbieter
71384 Weinstadt-Beutelsbach – Beutelsbach
Baden-Württemberg
309.000 €
Kaufpreis
84 m²
Wohnfläche
3,5
Zimmer
TraumImmo-ID: XY67RB7
Partner-ID: 424128
Partner-Objekt von: ohne-makler.net
Anbieter:
Privat von Helmut

Anbieter kontaktieren

Information

  • Typ: Dachgeschosswohnung
  • Etage: 2
  • Wohnfläche ca.: 84 m²
  • Bezugsfrei ab: Nach Vereinbarung
  • Zimmer: 3,5
Gäste-WCKücheBalkon

  • Baujahr: 1984
  • Heizart: CentralHeating
  • Brennart: Gas
  • Stockwerke: 4
  • Badezimmer: 1.0

Kaufpreis & Kosten

Kaufpreis309.000 €
Provisionkeine Provision für Käufer

Über dieses Traum-Apartment

Objektbeschreibung

Diese gepflegte und sehr helle 3,5-Zimmer-Dachgeschosswohnung befindet sich in ruhiger, straßen- und bahnabgewandter Lage in einem gepflegten Mehrfamilienhaus in Beutelsbach. Durch die Dachgeschosslage, die gute Ausrichtung sowie die großzügigen Fensterflächen bietet die Wohnung ein angenehmes Wohnambiente.

Der großzügige Wohn- und Essbereich bildet den zentralen Lebensmittelpunkt der Wohnung und öffnet sich zur überdachten, nach Süden ausgerichteten Loggia. Diese lädt zum Verweilen ein und schafft einen geschützten Außenbereich.

Die Küche ist mit einer hochwertigen Einbauküche ausgestattet, die im Kaufpreis enthalten ist. Das Tageslichtbad sowie das separate WC verfügen jeweils über elektrisch öffnende Lichtkuppeln, die für eine natürliche Belichtung und gute Belüftung sorgen. Neben dem Schlafzimmer steht ein weiteres Zimmer zur Verfügung, das flexibel als Arbeits-, Gäste- oder Kinderzimmer genutzt werden kann. Eine großzügige Diele sorgt für eine gute Erschließung aller Räume.

Ein weiteres Ausstattungsmerkmal ist der große, zur Wohnung gehörende Dachboden, der über eine Auszugsleiter direkt aus der Wohnung erreichbar ist und außergewöhnlich viel zusätzlichen Stauraum bietet. Ergänzend gehört ein separater Kellerraum zum Sondereigentum.

Ein Tiefgaragenstellplatz wird mitverkauft und ist dem Sondereigentum zugeordnet (Kaufpreis 15.000 €).

Im Gebäude stehen darüber hinaus verschiedene Gemeinschaftsräume, beispielsweise für Fahrräder oder Kinderwagen, zur gemeinschaftlichen Nutzung zur Verfügung.

Hinweis: Laut Bauplan befindet sich die Wohnung im 2. Obergeschoss, tatsächlich sind vier Treppenabsätze ohne Aufzug zu überwinden. Die Wohnung ist daher nicht barrierefrei.


Ausstattung

• Bodenbeläge aus Laminat und Fliesen
• Hochwertige Einbauküche mit Elektrogeräten von Siemens oder Miele
• Modernisiertes Tageslichtbad (vor einigen Jahren vollständig erneuert) mit elektrisch öffnendem Oberlicht
• Separates WC mit elektrisch öffnendem Oberlicht
• Überdachte, nach Süden ausgerichtete Loggia
• Großer, direkt aus der Wohnung zugänglicher Dachboden (Auszugsleiter) mit zusätzlichem Stauraum
• Separater Kellerraum im Sondereigentum
• Tiefgaragenstellplatz (Kaufpreis 15.000 €)
• Nutzung von Gemeinschaftsräumen (z. B. für Fahrräder und Kinderwagen)


Lage

Lagebeschreibung

Die Wohnung befindet sich in ruhiger und zugleich gut angebundener Wohnlage im Stadtteil Beutelsbach der Stadt Weinstadt. Die Lage verbindet angenehmes, gewachsenes Wohnumfeld mit einer sehr guten infrastrukturellen Anbindung.

Die S-Bahn-Station Beutelsbach ist in wenigen Gehminuten erreichbar und ermöglicht eine schnelle und komfortable Anbindung in Richtung Stuttgart sowie in die umliegenden Regionen. Damit eignet sich die Lage sowohl für Berufspendler als auch für Eigennutzer, die Wert auf eine gute Erreichbarkeit bei gleichzeitig ruhigem Wohnen legen.

Einkaufsmöglichkeiten für den täglichen Bedarf, Bäckereien, Ärzte, Apotheken, Schulen und Kindergärten befinden sich im näheren Umfeld und sind größtenteils fußläufig erreichbar. Das Ortszentrum von Beutelsbach mit weiteren Dienstleistungs- und Gastronomieangeboten ist ebenfalls gut erreichbar.

Die Umgebung ist geprägt von Weinbergen, Grünflächen und Naherholungsmöglichkeiten. Spazier- und Radwege sowie die landschaftlich reizvolle Umgebung des Remstals bieten einen hohen Freizeit- und Erholungswert.

Insgesamt zeichnet sich die Lage durch die gelungene Kombination aus ruhigem Wohnen, guter Infrastruktur und sehr guter Verkehrsanbindung aus.

ohne-makler.net
Anbieter:
Privat von Helmut

Anbieter kontaktieren