| Kaufpreis | 429.000 € |
|---|---|
| Provision | keine Provision für Käufer |
Sie suchen eine frisch sanierte Wohnung mit Platz für die ganze Familie?
Dann dürfen wir ihnen diese wunderschöne Wohnung in Wendelstein vorstellen.
Es erwarten Sie:
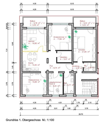
*4 Zimmer und ein großer Wohn/Ess/Kochbereich bieten Platz für die ganze Familie. (5-Zimmer)
*2 Balkone spenden Ruhe und Erholung, einer im Wohnbereich und einer im Hauptschlafzimmer
*Ein großes, komplett neues Bad mit separierten Gäste WC verhindern ungewollte Staus
*Ein separater und sehr großzügiger Hauswirtschaftsraum (~5qm) mit Waschmaschinenanschluss lässt alles notwendige aber nicht sehenswerte verschwinden
*2 Parkplätze gehören ebenfalls zur Wohnung (zzgl. á 7.500€ )
*Ebenso gehört ein geräumiges und gemauertes Kellerabteil zur Wohnung
Mit einer Wohnfläche von rd. 129qm haben Sie Möglichkeit eine Wohnung zu erwerben, welche Größer als viele Reihenhäuser ist und zugleich auch noch günstiger? Klingt interessant? Dann freuen wir uns auf ihren Anruf.
Verschaffen Sie sich einen Überblick über die weitreichende Sanierungshistorie:
[2025]: Badkompletterneuerung inkl. Leitungen
[2025]: Elektroinstandsetzung inkl. Erneuerung aller Schalter und Steckdosen
[2025]: Verlegung neuer, hochwertiger Bodenbeläge (Parador-Vinyl-Boden)
[2025]: Einbau neuer Türen und Zargen
[2025]: Wand- und Deckenaufbereitung (neu glatt verputzt und gestrichen)
[ca. 2010]: Fenstererneuerung
Überzeugt? Dann freuen wir uns auf ihre Anfrage oder Anruf.
Provision: 3,57 % inkl. ges. MwSt.
Die Wohnung befindet sich im wunderschönen Wendelstein. Ein Ort der von der Stadtgrenze Nürnbergs nur einen Katzensprung entfernt ist, aber dennoch ein sehr angenehmes Kleinstadtflair mit einer schönen Altstadt und tollen Erholungsmöglichkeiten am alten Ludwig-Main-Donau-Kanal bietet.
In Wendelstein selbst sind selbstverständlich Ärtzte, Sportvereine, Schulen (darunter auch ein Gymnasium und eine Walldorf Schule), sowie alle Geschäfte des alltäglichen Bedarfs.
Sie gelangen über die nahegelegene A73 in wenigen Minuten nach Nürnberg und die anderen Städte der Metropolregion sehr schnell und bequem.