Büro 1
Büro 1
Teeküche
Damen WC
Aufenthaltsbereich
Aufenthaltsbereich
Aufenthaltsbereich
Büro 2
Herren WC

Bürofläche in Schönefeld-Waltersdorf (75 m²)

Lilienthalstraße 3d
12529 Schönefeld – Waltersdorf
Brandenburg
975 €
Kaltmiete
TraumImmo-ID: YSSCDP4
Partner-ID: 399811
Partner-Objekt von: ohne-makler.net
Anbieter:
Privat von Hermann Krüger

Anbieter kontaktieren

Information

  • Typ: Büroetage
  • Etage: 1
  • Bezugsfrei ab: Nach Vereinbarung
Küche

  • Heizart: CentralHeating
  • Brennart: Gas
  • Stockwerke: 1
  • Heizkosten in Nebenkosten enthalten: True

Miete & Nebenkosten

Miete975 €
Nebenkosten188 € inkl. Heizkosten
Provisionkeine Provision für Käufer

Über dieses Traum-Büro

Objektbeschreibung

Wir suchen einen Nachmieter für unsere gepflegte Büroeinheit mit insgesamt ca. 75 m² Nutzfläche in Schönefeld-Waltersdorf, einem attraktiven Gewerbestandort mit niedrigem Gewerbesteuerhebesatz südlich von Berlin. Ideal für Unternehmen, die Kosten optimieren möchten.
Die Fläche kann kurzfristig übernommen werden und steht für eine langfristige Nutzung zur Verfügung.
Die Räumlichkeiten eignen sich für kleine Unternehmen, Start-ups, Dienstleister oder Freiberufler, die Wert auf eine gute Erreichbarkeit und ein wirtschaftsfreundliches Umfeld legen.


Ausstattung

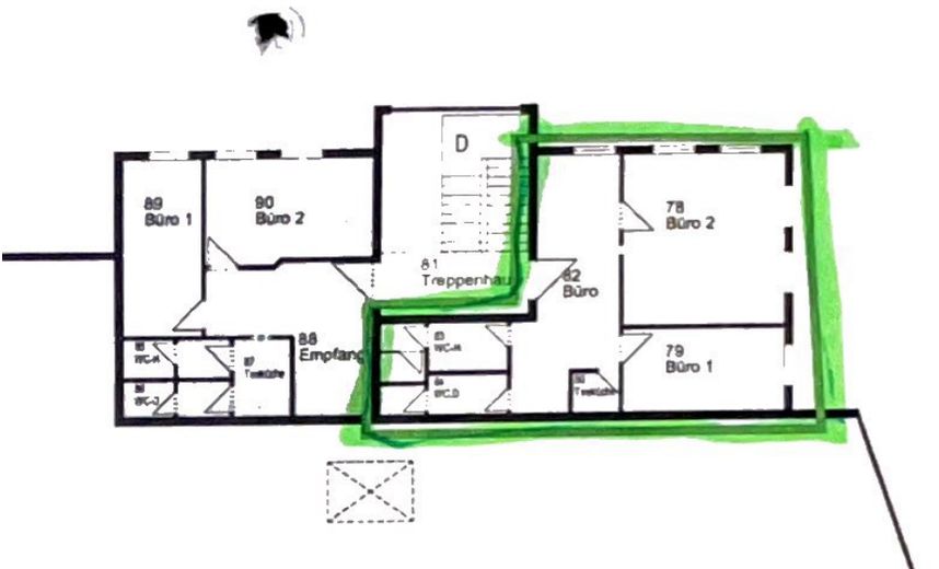
Raumaufteilung
+ 2 helle Büroräume mit flexibler Nutzungsmöglichkeit
+ 1 Aufenthaltsraum
+ Kochnische (Teeküche)
+ 2 separate WCs

Ausstattung
+ gepflegter, funktionaler Zustand
+ Klimaanlagen im Büro und Aufenthaltsraum
+ pflegeleichter Teppichboden
+ Glasfaseranschluss vorhanden
+ große Fenster mit Sonnenschutz
+ ausreichend Steckdosen und Beleuchtung

PKW-Stellplätze vor dem Gebäude vorhanden, auf Wunsch auch fest anmietbar.


Sonstiges

Bei Interesse melden Sie sich gerne bei uns!

Impressum:
Vasto GmbH
Lilienthalstraße 3d
12529 Schönefeld


Lage

Lagebeschreibung

Das Objekt liegt im Gewerbegebiet Waltersdorf (Gemeinde Schönefeld) – einem dynamischen Wirtschaftsstandort mit hervorragender Verkehrsanbindung:
+ direkte Nähe zur A113 / A117 und zum Berliner Ring (A10)
+ nur wenige Minuten zum Flughafen BER
+ gute Erreichbarkeit des Berliner Stadtzentrums

ohne-makler.net
Anbieter:
Privat von Hermann Krüger

Anbieter kontaktieren