Renditekracher 5,4% - Frisch renovierte und möblierte 1-Zi. Whg. in Mainz- direkt vom Eigentümer

Die vollständige Adresse erhalten Sie vom Anbieter
55127 Mainz – Marienborn
Rheinland-Pfalz
145.000 €
Kaufpreis
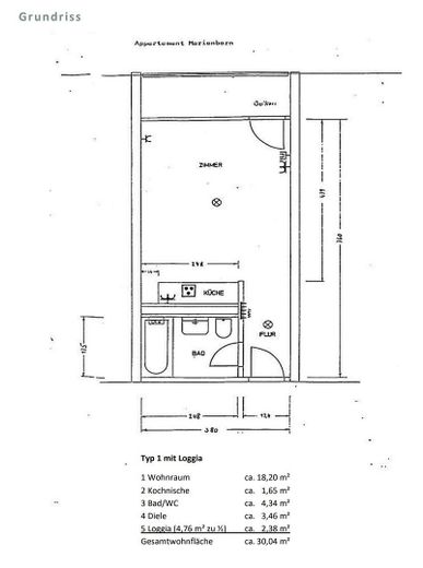
30 m²
Wohnfläche
1
Zimmer
TraumImmo-ID: Z4VMUEX
Partner-ID: 419838
Partner-Objekt von: ohne-makler.net
Anbieter:
Privat vom Eigentümer

Anbieter kontaktieren

Information

  • Typ: Etagenwohnung
  • Etage: 3
  • Wohnfläche ca.: 30 m²
  • Bezugsfrei ab: sofort
  • Zimmer: 1
KellerBarrierefreiKücheBalkon

  • Baujahr: 1972
  • Zustand: FirstTimeUseAfterRefurbishment
  • Heizart: CentralHeating
  • Brennart: Oil
  • Stockwerke: 6
  • Badezimmer: 1.0

Kaufpreis & Kosten

Kaufpreis145.000 €
Provisionkeine Provision für Käufer

Über dieses Traum-Apartment

Objektbeschreibung

Zum Verkauf steht eine komplett frisch renoviertes und voll möbliertes 1-Zimmer-Designerapartment in Mainz. Die Wohnung erstreckt sich auf ca. 30qm und eignet sich wunderbar als Studentenapartment oder auch für Pendler, die weder auf Design noch auf Wohnkomfort verzichten wollen. Dank der attraktiven Lage und der durchdachten Raumaufteilung wird diese Wohnung auch künftig
eine hohe Nachfrage bei Mietinteressenten genießen – eine lohnende Investition mit langfristiger
Wertstabilität.
Die Wohnung wurde in einem modernen, hochwertigen Stil renoviert und möbliert und ist sofort bezugs- bzw. vermietungsbereit. Durch die klare und gut durchdachte Raumaufteilung wirkt die Wohnfläche effizient genutzt; Wohnen, schlafen und arbeiten lassen sich in einem stimmigen Konzept kombinieren.
Der Sonnenbalkon mit Blick ins Grüne, erstreckt sich über den gesamten Wohnraum und lädt zum Verweilen ein.

**Zahlen-Daten-Fakten zu Deiner ersten Kapitalanlage**
Kaufpreis: 145.000EUR
Kaltmiete: 650 EUR (650 x 12 Monate = 7.800 EUR pa.)
Hausgeld: 198 EUR, wovon 130EUR auf den Mieter umzulegen sind. Dein Anteil liegt also nur bei 68 EUR im Monat, wovon der größte Teil in die Rücklage fließt.

Du willst Deine Rente nicht dem Schicksal überlassen? Dann warte nicht länger, sondern kümmere Dich schon heute darum. Die Wohnung ist nicht nur optisch ein Hingucker, sie rechnet sich auch!


Ausstattung

-Frisch saniert & möbliert - direkt einziehen oder vermieten (Es ist schon ein potentieller Mieter vorhanden).
-glatt gespachtelte Wände für ein ruhiges, hochwertiges finish
-Hochwertiger Designboden in Parkett-Optik
-Neues, modernes Duschbad mit schwarzen Armaturen und Saunafliesen
-Neue Einbauküche
-Vollausstattung inkl. Boxspringbett, Kleiderschrank (Jutzler), Schreibtisch und weiteren Möbeln von XXXL-Lutz
-Zur Wohnung gehört ein eigenes Kellerabteil, das ohne Treppenstufen zugänglich ist –
eine praktische Ergänzung für zusätzlichen Stauraum.


Sonstiges

Direkt vom Eigentümer, ohne Maklerprovision.


Lage

Lagebeschreibung

Die Wohnanlage überzeugt nicht nur durch ihr gepflegtes Erscheinungsbild, sondern auch durch ihre ausgezeichnete Lage. Mainz-Marienborn vereint die Nähe zur Stadt mit naturnahem Wohnen. Dank der guten Anbindung an den öffentlichen Nahverkehr sowie an die Autobahnen in Richtung Rhein-Main und Rheinhessen ist der Standort besonders attraktiv für Pendler.

Für Naturliebhaber und Erholungssuchende bieten die umliegenden Felder, Wiesen und Radwege ideale Möglichkeiten, um abzuschalten und dem Alltag zu entfliehen. Gleichzeitig befinden sich Einkaufsmöglichkeiten, Restaurants und weitere wichtige Einrichtungen in der Nähe.

ohne-makler.net
Anbieter:
Privat vom Eigentümer

Anbieter kontaktieren