Büro
Büro
Büro (Toilette und Küche)
Vorraum Untergeschoss
Nebeneingang Untergeschoss
Lager Untergeschoss
Hof
Hof
Einfahrt

Büro- und Lagerfläche TOP LAGE! Ideal für Handwerker -inkl. Parkplätze

Die vollständige Adresse erhalten Sie vom Anbieter
65929 Frankfurt am Main – Höchst
Hessen
900 €
Kaltmiete
TraumImmo-ID: Z5ZGEAM
Partner-ID: 389084
Partner-Objekt von: ohne-makler.net
Anbieter:
Privat von Gregor Jaworski

Anbieter kontaktieren

Information

  • Typ: Büroetage
  • Etage: 0
  • Bezugsfrei ab: 01.11.2025

  • Baujahr: 1900
  • Zustand: WellKept
  • Brennart: Electricity
  • Stockwerke: 1
  • Heizkosten in Nebenkosten enthalten: True

Miete & Nebenkosten

Miete900 €
Nebenkosten150 € inkl. Heizkosten
Kaution2700€
Provisionkeine Provision für Käufer

Über dieses Traum-Büro

Objektbeschreibung

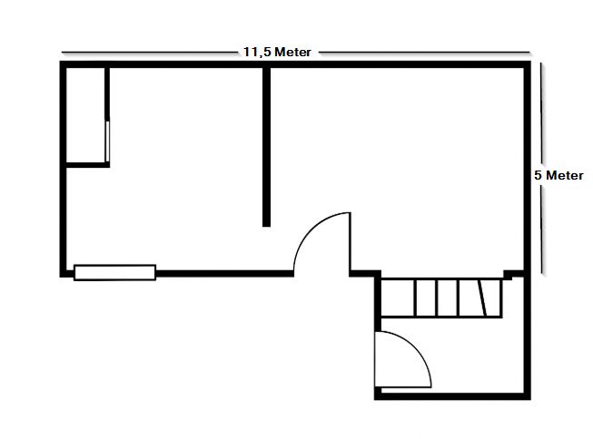
Zur Vermietung steht eine attraktive und vielseitige Gewerbeeinheit mit insgesamt ca. 110 Quadratmetern Fläche, aufgeteilt auf zwei Etagen und einen Vorraum. Die Bereiche, jeweils separat zugänglich, bieten ein hohes Maß an Flexibilität und eignen sich ideal als Lager oder Büroflächen. Zurzeit befinden sich die Flächen im Rohzustand, was Ihnen als Mieter die Möglichkeit gibt, diese nach Ihren individuellen Bedürfnissen und Vorstellungen zu gestalten und auszubauen.
Es gibt zwei Stellplätze im Hof, wobei einer dauerhaft genutzt werden kann.


Ausstattung

Die Räumlichkeiten verfügen über eine grundlegende Ausstattung, einschließlich mehrerer Stromanschlüsse. Obwohl sie momentan nicht möbliert sind und keine Lagerregale vorhanden sind, bietet der Raum viel Potenzial zur Gestaltung nach eigenen Wünschen und Bedürfnissen.


Sonstiges

Die Gesamtmiete versteht sich zuzüglich Nebenkosten von 150 € pro Monat. Ein Gewerbemietvertrag wird abgeschlossen.

Bitte teilen Sie bei Ihrer Anfrage mit, um welches Gewerbe es sich handelt und wie viele Mitarbeiter Ihr Unternehmen hat. Bei Bedarf werden wir um die Vorlage von Unternehmensunterlagen bitten.

Nutzen Sie diese einmalige Gelegenheit! Dieses Objekt ist ideal für Handwerker und Kleinunternehmer, die Lager- und Büroflächen suchen. Melden Sie sich jetzt, um eine Besichtigung zu vereinbaren. Wir freuen uns auf Ihre Anfrage!


Lage

Lagebeschreibung

Die Gewerbeeinheit liegt strategisch günstig in 65929 Frankfurt am Main, nur eine Gehminute vom Bahnhof entfernt. Die Nähe zu einer Vielzahl von Annehmlichkeiten, einschließlich Geschäften, Restaurants, Kneipen, Supermärkten und Banken, macht diesen Standort noch attraktiver. Zudem ist die Autobahn nur 10 Minuten entfernt, was eine hervorragende Verkehrsanbindung gewährleistet.

ohne-makler.net
Anbieter:
Privat von Gregor Jaworski

Anbieter kontaktieren