| Kaufpreis | 289.000 € |
|---|---|
| Provision | keine Provision für Käufer |
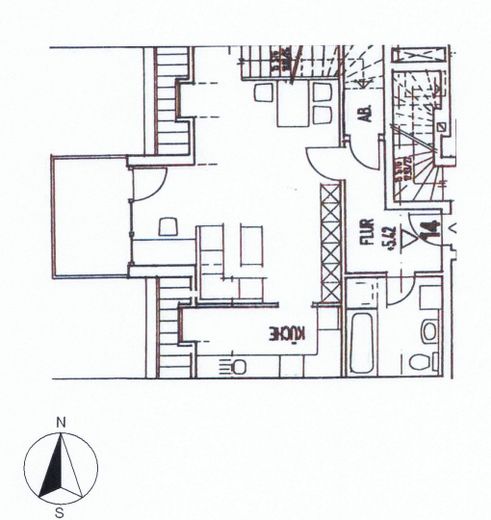
Diese freundliche, gepflegte DG-Wohnung im 2. OG liegt an der Hauptstr. 76 östlich von
Regensburg in Tegernheim und kann zum 01.04.2026 bezogen werden.
Die Wohnung ist in 2 Etagen aufgeteilt.
Ein seitl. Treppenaufgang führt in die 2. Etage.
Zum Objekt gehört auch ein nach Südwesten orientierter Balkon, auf dem es sich wunderbar vom Alltag erholen lässt.
In der Innenausstattung mit inbegriffen ist eine Einbauküche. Zur Wohnung gehören
außerdem noch ein Keller mit praktischem Stauraum und ein TG-Stellplatz. Dadurch
gehört langes Parkplatzsuchen der Geschichte an.
Die Küche ist mit einer EBK ausgestattet. Geräte sind teilweise erneuert.
Die Wohnetage verfügt über einen Parkettboden, das Bad ist gefliest, die restl. Räume sind mit strapazierfähigen Laminatboden ausgestattet.
Ein Waschmaschinenanschluss befindet sich im Bad.
Der Balkon besitzt eine Südwestausrichtung und lädt zu gemütlichen Abendstunden ein.
Die 2. Etage ist über eine holzbelegte Treppe zu erreichen und bietet ausreichend Platz zum Schlafen und einen zusätzlichen Arbeitsbereich.
Durch ein Dachfenster kann genügend Sonnenlicht den Raum erhellen.
Die Eingangsdiele und ein abschließbarer Stauraum runden den durchdachten Grundriss ab.
Die Wohnung eignet sich besonders gut für Single oder Paare.
Der Verkauf ist privat, es fallen also keine Maklergebühren an.
Die Immobilie liegt in Tegernheim. Eine Anbindung zum öffentlichen Nahverkehr befindet sich direkt vor der Wohnanlage. Die Innenstadt Regensburg ist nur ein paar Autominuten entfernt.
In Laufnähe gibt es ein paar Bäckereien, zwei Ärzte, zwei Restaurants, zwei Supermärkte und ein Café.
Auch zwei Fitnessstudios, ein Modegeschäft, eine Bibliothek, eine Postannahmestelle und ein Blumenladen sind fußläufig gut zu erreichen.
Weiter entfernt finden Sie zudem mehrere Einkaufsmöglichkeiten und Kindergärten.
Diverse Erholungs- und Sportangebote und gute Ausgehmöglichkeiten gibt es ebenfalls im größeren Umkreis.