Wohnzimmer
Wohnzimmer zur Breiten Straße
Abstellkammer
Haus Breite Straße 15
Wohnzimmer mit Küche
Eingangstür
Schafzimmer mit Balkon
Alte Küche
Flur / Wohnzimmer
Balkon
Bad mit Dusche
Waschbecken und Hadtuchhalter
WC

Frisch renovierte 2-Zimmer-Wohnung in der Altstadt von Wismar – zentrale Lage am Marktplatz

Breite Straße 15
23966 Wismar – Wismar
Mecklenburg-Vorpommern
450 €
Kaltmiete
45 m²
Wohnfläche
2
Zimmer
TraumImmo-ID: JYRUQ7G
Partner-ID: 447720
Partner-Objekt von: ohne-makler.net
Anbieter:
Privat von Jan Menssing

Anbieter kontaktieren

Information

  • Typ: Etagenwohnung
  • Etage: 1
  • Wohnfläche ca.: 45 m²
  • Bezugsfrei ab: 01.06.2026
  • Zimmer: 2
KellerKücheBalkon

  • Baujahr: 2012
  • Zustand: FullyRenovated
  • Heizart: CentralHeating
  • Brennart: Gas
  • Stockwerke: 1
  • Badezimmer: 1.0
  • Heizkosten in Nebenkosten enthalten: True

Miete & Nebenkosten

Miete450 €
Nebenkosten120 € inkl. Heizkosten
Heizkosten60 €
Kaution1350€

Über dieses Traum-Apartment

Objektbeschreibung

In bester Lage der Wismarer Altstadt, in der Breiten Straße 15, steht diese attraktive 2-Zimmer-Wohnung mit ca. 45 m² Wohnfläche ab dem 15.05.2026 oder 01.06.2026 zur Vermietung.

Die Wohnung befindet sich in einem gepflegten Wohnhaus aus dem Jahr 1930, das im Jahr 2012 umfassend kernsaniert wurde. Aktuell wird die Wohnung selbst nochmals modernisiert und bietet somit einen Erstbezug nach Renovierung.

Die Wohnung wird frisch renoviert und in modernem Zustand übergeben. Bitte beachten Sie, dass die durchgeführten Renovierungsarbeiten auf den aktuellen Bildern noch nicht zu sehen sind.


Ausstattung

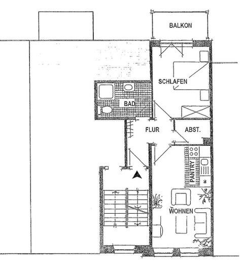
- 2 helle und gut geschnittene Zimmer
- neue Pantryküche
- modernes Duschbad mit Handtuchheizkörper
- neuer Fußboden in allen Wohnräumen
- neue Innentüren
- eigener Kellerraum


Lage

Lagebeschreibung

Die Wohnung liegt mitten in der historischen Altstadt von Wismar. Der Marktplatz ist nur wenige Schritte entfernt, ebenso zahlreiche Einkaufsmöglichkeiten, Cafés und Restaurants. Die zentrale Lage bietet eine hervorragende Anbindung und macht das Wohnen besonders attraktiv.

ohne-makler.net
Anbieter:
Privat von Jan Menssing

Anbieter kontaktieren