Kleines Zimmer
Kleines Zimmer
Balkonzimmer
Balkonzimmer
Flur
Küche
Küche
Bad
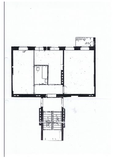
Grundriß

Wunderschöne 2 Zimmer Altbau-Wohnung in Berlin, Prenzlauer Berg

Die vollständige Adresse erhalten Sie vom Anbieter
10405 Berlin – Prenzlauer Berg
Berlin
1016 €
Kaltmiete
60 m²
Wohnfläche
2
Zimmer
TraumImmo-ID: PY3PE3K
Partner-ID: 430110
Partner-Objekt von: ohne-makler.net
Anbieter:
Privat vom Eigentümer

Anbieter kontaktieren

Information

  • Typ: Etagenwohnung
  • Etage: 2
  • Wohnfläche ca.: 60 m²
  • Bezugsfrei ab: 01.05.2026
  • Zimmer: 2
KellerBalkon

  • Baujahr: 1900
  • Heizart: CentralHeating
  • Brennart: Gas
  • Stockwerke: 5
  • Badezimmer: 1.0
  • Heizkosten in Nebenkosten enthalten: True

Miete & Nebenkosten

Miete1016 €
Nebenkosten180 € inkl. Heizkosten
Kaution3048€

Über dieses Traum-Apartment

Objektbeschreibung

Die wunderschöne 2-Zimmer-Altbauwohnung ist ca. 60,3 m² groß zzgl. einen ca. 2 m² großen Balkon.

Die Beheizung läuft über eine Gas-Zentralheizung.

Die Elektrik ist vollständig erneuert worden.


Ausstattung

Im kleinen Zimmer ist der originale Naturholz-Dielenboden aufwendig aufgearbeitet worden. Im Balkonzimmer und im Flur ist Laminat in Buche verlegt. Im kleinen Zimmer finden Sie ein originales Stuckband an der Decke und eine Stuckrosette in der Mitte. Die wunderschönen originalen Altbautüren wurden aufwendig aufgearbeitet und sehr hochwertig lackiert.

Die Böden in der Küche und im Bad sind diagonal weiß gefliest.

Im Bad sind die Wände bis auf ca. 2,20 m hoch weiß gefliest. Das Bad verfügt über eine Badewanne, ein WC und ein Waschbecken. Die Entlüftung des Bades erfolgt durch einen elektrischen Lüfter.

In der Küche sind an mehreren Wänden weiße Fliesenspiegel. Die Küche hat zwei große Fenster und ist daher besonders hell. Die Küche bietet genügend Platz für einen kleinen Eßtisch.


Lage

Lagebeschreibung

Der S-Bahnhof Prenzlauer Allee ist innerhalb ein paar Minuten zu erreichen. Die Tram ist zu Fuß eine halbe Minute entfernt.
In unmittelbarer Nähe befinden sich diverse Galerien, Cafés, Restaurants, Schulen und Geschäfte des täglichen Bedarfs.

ohne-makler.net
Anbieter:
Privat vom Eigentümer

Anbieter kontaktieren