| Kaufpreis | 746.500 € |
|---|---|
| Provision | keine Provision für Käufer |
Zum Verkauf steht ein großzügiges, bereits genehmigtes Wohnbauprojekt in attraktiver Lage von Luckau OT Uckro.
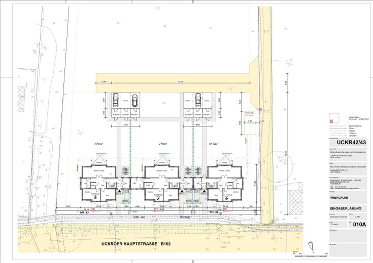
Das Gesamtgrundstück umfasst 8.261 m² und bietet eine außergewöhnlich große Flächenreserve. Für das Areal liegt eine rechtskräftige Baugenehmigung zur Errichtung eines modernen Wohnensembles vor.
Genehmigt ist die Bebauung mit:
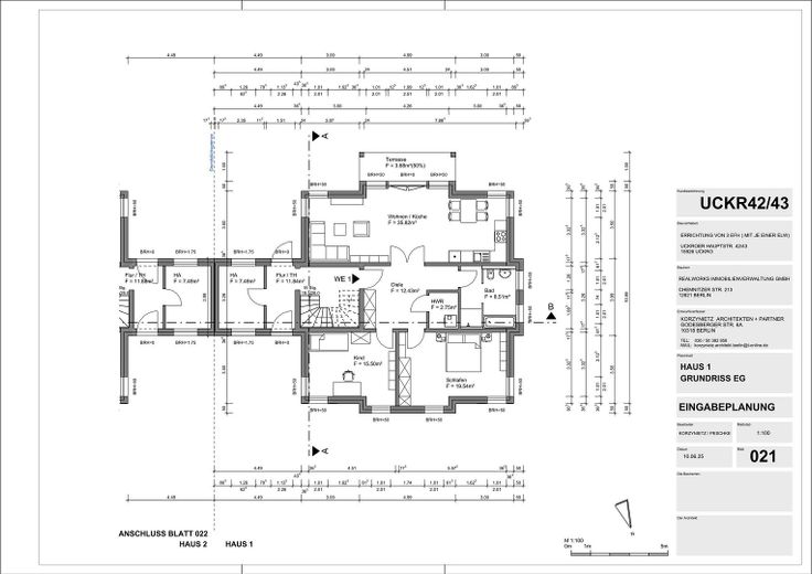
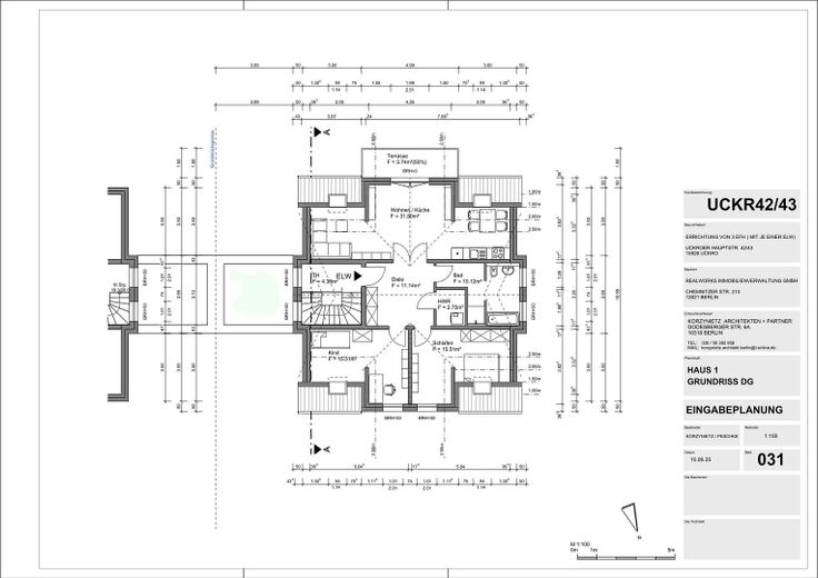
3 Wohnhäusern
Je Haus 2 Wohneinheiten
Gesamt: 6 Wohneinheiten
Die vollständige Genehmigungsplanung sowie sämtliche relevanten Nachweise und Gutachten liegen bereits vor. Das Projekt kann somit ohne zeitintensive Vorlaufphase realisiert werden.
Flexible Erwerbsoptionen – Einzelgrundstücke verfügbar
Neben dem Erwerb des Gesamtgrundstücks besteht auch die Möglichkeit, ein Einzelgrundstück mit ca. 2.750 m² zu erwerben.
Je Einzelgrundstück ist die Errichtung von:
1 Wohnhaus
2 Wohneinheiten
bereits Bestandteil der genehmigten Planung.
Diese Struktur eignet sich ideal für private Bauherren, Kapitalanleger sowie Bauträger.
Zusätzliche Entwicklungsreserve / Erweiterungspotenzial
Die außergewöhnlich großzügigen Grundstücksflächen bieten über das genehmigte Bauvorhaben hinaus interessante Entwicklungsperspektiven.
Auch beim Erwerb eines einzelnen Grundstücks verbleibt eine attraktive Flächenreserve mit vielfältigen Nutzungsmöglichkeiten – vorbehaltlich behördlicher Genehmigungen.
Damit verbindet das Angebot Planungssicherheit mit langfristiger Flexibilität.
Planungs- & Genehmigungssicherheit
Vorhanden sind unter anderem:
Baugenehmigung (im Kaufpreis enthalten)
Vollständige Genehmigungsplanung
Bodengutachten
Entwässerungsnachweise
Die Grundstücke befinden sich in Uckro, einem gewachsenen Ortsteil der Stadt Luckau im Landkreis Dahme-Spreewald.
Die Lage bietet eine sehr gute Kombination aus ruhigem Wohnen und funktionaler Anbindung:
Direkte Anbindung über die B102
Bahnhof Uckro in kurzer Distanz
Gute Erreichbarkeit Richtung Luckau / Lübben / Region
Uckro ist geprägt von großzügigen Grundstücken und angenehmer Wohnqualität.