Vom Areal Richtung Travemünde
Naturparadies Dassow
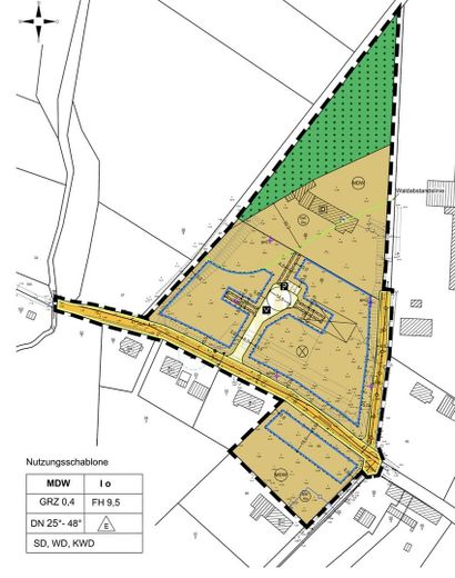
Abriss B-Plan
Beispiel Bebauungsmöglichkeit
Beispiel Bebauungsmöglichkeit
Baufeld Richtung Travemünde
Beispiel Bebauungsmöglichkeit
Beispiel Bebauungsmöglichkeit
Beispiel Bebauungsmöglichkeit
Marina mit Zugang zur Ostsee
Beispiel Bebauungsmöglichkeit
Makrolage

Vollerschlossenes Baugebiet

Die vollständige Adresse erhalten Sie vom Anbieter
23942 Nordwestmecklenburg - Landkreis - Dassow – Dassow
Mecklenburg-Vorpommern
TraumImmo-ID: RKGMF79
Partner-ID: 398390
Partner-Objekt von: ohne-makler.net
Anbieter:
Privat von Herr M. Breymann

Anbieter kontaktieren

Information

    • Bezugsfrei ab: Nach Vereinbarung

    • Grundstücksfläche: 11273.0

    Kaufpreis & Kosten

    Provisionkeine Provision für Käufer

    Über dieses Traum-Wohngrundstück

    Objektbeschreibung

    Auf einem einzigartigen abgelegenen Areal in idyllischer Umgebung mit eigenem Waldstück entsteht ein Ostseenahes kleines und vor allem ruhiges feines neues Dörfliches Wohngebiet am Stadtrand - komplett erschlossen (innen und außen) - mit Ausrichtung Travemünde/Ostsee.

    Die aktuelle Planung und abgesicherte Durchführung sowie Gewährleistung geht von den ersten Bebauungsmöglichkeiten in 2026 aus.

    Der Kaufpreis ist erst nach Baureife fällig.


    Lage

    Lagebeschreibung

    Zur Metropolregion Hamburg gehörig und durch die absolute Nähe zu den einschlägigen Ostseebädern, wie Lübeck-Travemünde und Boltenhagen, ein echtes Highlight in ländlicher Umgebung.

    Hier genießt man die Natur und Nähe zur See - ohne - auf die Annehmlichkeiten einer kompletten Infrastruktur der Stadt - zu verzichten!

    Für Freizeitkapitäne bietet die vorhandene Marina des Ortes entsprechenden Zugang zur Ostsee.

    Verkehrstechnisch ist man zeitnah in Lübeck sowie über den nahen Autobahnanschluss der A20 und die folgende A1 in der Metropole Hamburg.

    ohne-makler.net
    Anbieter:
    Privat von Herr M. Breymann

    Anbieter kontaktieren