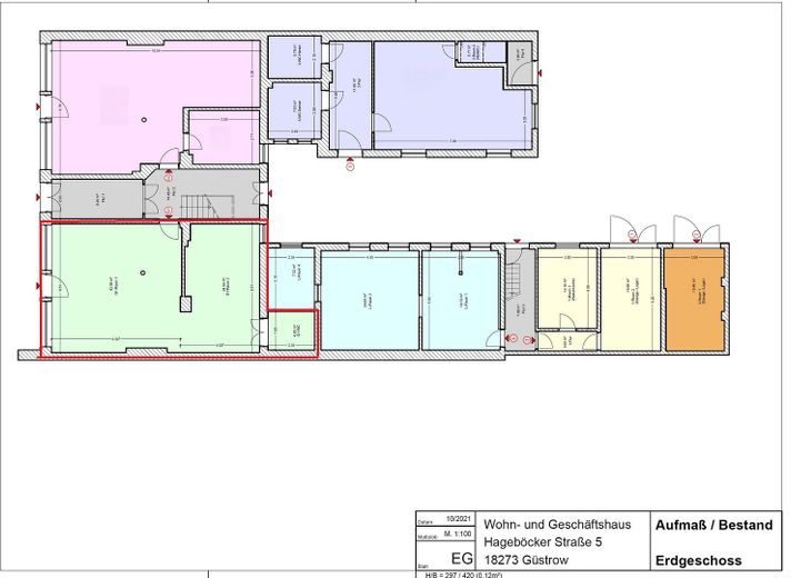
Gewerbefläche
rot umrandet (rechte Seite)
Verkaufsfläche
Verkaufsfläche
Büro
WC
Rückseite, Stellplatz
Pantryküche
Schaufensterfläche
Straßenseite

Reserviert! Büro + Praxis + Späti + DHL-Shop 1€/m² | großes Schaufenster

Hageböcker Str. 5
18273 Güstrow – Güstrow
Mecklenburg-Vorpommern
72 €
Kaltmiete
TraumImmo-ID: WWBGY9W
Partner-ID: 386607
Partner-Objekt von: ohne-makler.net
Anbieter:
Angebot von Fr. Müller

Mobil:
0157 72609384

Anbieter kontaktieren

Information

  • Typ: Kaufhaus
  • Etage: 0
  • Bezugsfrei ab: 01.09.2025

  • Baujahr: 2022
  • Zustand: FullyRenovated
  • Heizart: CentralHeating
  • Brennart: Gas
  • Heizkosten in Nebenkosten enthalten: True

Miete & Nebenkosten

Miete72 €
Nebenkosten250 € inkl. Heizkosten
Heizkosten125 €
Kaution1620€
Provisionkeine Provision für Käufer

Über diesen Traum-Laden

Objektbeschreibung

Die Gewerbeeinheit ist funktional geschnitten und kann an die jeweiligen Bedürfnisse angepasst werden. Die werbewirksame Schaufensterfront (ca. 7m) ist weit einsehbar.
Im hinteren Bereich befindet sich 1x WC und ein weiterer Raum der als Büro genutzt werden kann. Zufahrt von der Rückseite des Objektes möglich inkl. Stellplatz.

1 x Verkaufsraum (43m²) mit großer Schaufensterfläche (7m)
1 x Büro separat im hinteren Bereich des Hauses
1 x WC
1 x Stellplatz


Sonstiges

Anrufen & Termin zur Besichtigung vereinbaren | WhatsApp: 0157-72609384
Langfristige Förderung möglich!
DHL-Paket Store, Automatenshop, Späti in ihrer Nähe, Barbershop, Frisör, Einzelhandel, Tätowierer, Dienstleister usw.


Lage

Lagebeschreibung

Das modernisierte Wohn- und Geschäftshaus befindet sich in zentraler Innenstadtlage von Güstrow.

ohne-makler.net
Anbieter:
Angebot von Fr. Müller

Mobil:
0157 72609384

Anbieter kontaktieren