Gartenansicht
Straßenansicht
Wohnzimmer
Essbereich Wohnzimmer
Eingangsbereich
Hauptbad
Hauptbad
Küche
Kinderzimmer
Blick in den Garten
Garten
Vorgarten
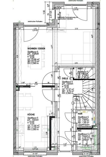
Erdgeschoss
1. Obergeschoss
2. Obergeschoss

Modernes, familienfreundliches Stadthaus in Altlindenau - von privat

Die vollständige Adresse erhalten Sie vom Anbieter
04177 Leipzig – Altlindenau
Sachsen
810.000 €
Kaufpreis
137 m²
Wohnfläche
5
Zimmer
TraumImmo-ID: XR9KASH
Partner-ID: 417450
Partner-Objekt von: ohne-makler.net
Anbieter:
Privat vom Eigentümer

Anbieter kontaktieren

Information

  • Typ: Reihenmittelhaus
  • Wohnfläche ca.: 137 m²
  • Bezugsfrei ab: Nach Vereinbarung
  • Zimmer: 5
Gäste-WCBalkonGarten

  • Grundstücksfläche: 213.0
  • Baujahr: 2015
  • Zustand: WellKept
  • Heizart: FloorHeating
  • Brennart: Gas
  • Stockwerke: 3
  • Nutzfläche: 146.0
  • Badezimmer: 3.0

Kaufpreis & Kosten

Kaufpreis810.000 €
Provisionkeine Provision für Käufer

Über dieses Traum-Haus

Objektbeschreibung

In einer urbanen, zugleich angenehm ruhigen Lage befindet sich dieses moderne Reihenmittelhaus im Herzen von Altlindenau nah am Lindenauer Markt. Nur vier Straßenbahnhaltestellen vom Leipziger Stadtzentrum entfernt, liegt es in unmittelbarer Nähe zum Palmengarten und dem Auenwald – ideal für Spaziergänge, Freizeit und Erholung. Das RB-Fußballstadion und die Arena sind fußläufig zu erreichen.

Das Haus wurde 2015 bis 2016 im energieeffizienten KfW 70 Standard errichtet und im Dezember 2016 von den derzeitigen Besitzern bezogen. Eine umweltfreundliche Zeolith-Gas-Wärmepumpe in Kombination mit einer Solarthermieanlage sorgt für nachhaltige Wärmeversorgung. Zusätzlich steht eine eigene Regenwasserzisterne zur Verfügung, die sich perfekt für die Gartenbewässerung nutzen lässt.
Der liebevoll angelegte Garten mit großer Terrasse und Gartenhaus bietet Raum zum Entspannen. Im zweiten Obergeschoss ergänzt ein großzügiger Balkon am Elternschlafzimmer das Angebot an Rückzugsorten und abendlichen Sonnenstrahlen.
Im Erdgeschoss befinden sich der offene Wohn- und Essbereich, die Küche, ein Gäste-WC sowie Hausanschlussraum und praktische Abstellkammer.
Das erste Obergeschoss beherbergt drei nahezu gleich große Schlaf- bzw. Gästezimmer sowie ein modernes Duschbad.
Das zweite Obergeschoss bildet eine eigene Wohnetage mit einem großen Schlafzimmer, einem geräumigen Bad mit Dusche und Wanne sowie dem Hauswirtschaftsraum.

Das Stadthaus überzeugt durch eine hochwertige, zeitgemäße Ausstattung: Fußbodenheizung in allen Räumen, elegante Eiche Kurzdielen in den Wohnbereichen sowie elektrische Rollläden im gesamten Haus sorgen für Komfort und Wohnqualität.

Den Reihenhäusern angeschlossen ist ein Mehrfamilienhaus, in dem sich der Tiefgaragenstellplatz befindet. Der Platz ist im Kaufpreis enthalten. Er wird im Rahmen einer Eigentümergemeinschaft verwaltet.


Ausstattung

Raumaufteilung:
• Wohnzimmer zur Terrasse, EG
• Küche, EG
• Gäste-WC, EG
• Abstellraum m. Anschlüssen, EG
• Kammer unter Treppe, EG
• Zimmer 1, 1. OG
• Zimmer 2, 1. OG
• Zimmer 3, 1. OG
• Duschbad u. WC, 1. OG
• Schlafzimmer, 2. OG
• Großes Bad mit Wanne, Dusche u. WC, 2. OG
• HZG/HWR Waschmaschine, 2. OG
• Balkon, 2. OG

Tiefgaragenstellplatz
• im benachbarten Mehrfamiliennachhaus

Weitere Infos:
• Intern verlegtes Netzwerkkabel Ethernet 1 GB/s in den Wohnräumen
• Elektrische Rollläden
• Lichtkuppel im Treppenhaus
• Fahrradgarage
• Gartenhaus mit Stromanschluss


Lage

Lagebeschreibung

Altlindenau liegt westlich des Leipziger Stadtzentrums, eingebettet zwischen dem Palmengarten und dem nördlichen Auenwald. Der Stadtteil verbindet urbanes Flair mit historischem Charme: prächtige Gründerzeitbauten prägen das Straßenbild, während ehemalige Industrieareale kreativ und modern umgenutzt wurden. Das Viertel bietet eine hervorragende Infrastruktur mit vielfältigen Einkaufsmöglichkeiten, Kneipen und Restaurants, einem Krankenhaus, zahlreichen Schulen sowie großzügigen Park- und Grünanlagen in direkter Umgebung. Auch kulturell hat Lindenau viel zu bieten – unter anderem die Musikalische Komödie, die Schaubühne Lindenfels an der Karl-Heine-Straße und das Theater der Jungen Welt.
Für Familien besonders attraktiv: Ein kleiner Spielplatz befindet sich nur wenige Schritte vom Stadthaus entfernt.

ohne-makler.net
Anbieter:
Privat vom Eigentümer

Anbieter kontaktieren