Westansicht
Bautenstand Haus Innenbereich
Nordansicht
Bautenstand Garage
Innenansicht Küche
Süd-Ostansicht
Ansicht Süd-West
Ansicht Süd-Ost

Bungalow mit Doppelgarage in Irchenrieth - KfW-Förderung möglich

Marderweg 13
92699 Irchenrieth – Irchenrieth
Bayern
530.000 €
Kaufpreis
135 m²
Wohnfläche
4
Zimmer
TraumImmo-ID: ZYZJ45K
Partner-ID: 409554
Partner-Objekt von: ohne-makler.net
Anbieter:
Angebot von JOWI Immo GmbH

Anbieter kontaktieren

Information

  • Typ: Bungalow
  • Wohnfläche ca.: 135 m²
  • Bezugsfrei ab: Nach Vereinbarung
  • Zimmer: 4
BarrierefreiGäste-WCGarten

  • Grundstücksfläche: 567.0
  • Baujahr: 2025
  • Zustand: FirstTimeUse
  • Heizart: FloorHeating
  • Stockwerke: 1
  • Badezimmer: 2.0

Kaufpreis & Kosten

Kaufpreis530.000 €
Provisionkeine Provision für Käufer

Über dieses Traum-Haus

Objektbeschreibung

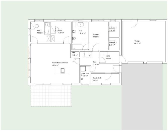
Der massiv gebaute Neubau-Bungalow wird derzeit errichtet und ist ab Juli 2026 bezugsfertig. Das Gebäude bietet ein ebenerdiges Wohnkonzept mit einem offenen Wohn-, Ess- und Kochbereich, der direkt an den Eingangsbereich anschließt. Die Küche mit Kochinselvorbereitung verfügt über einen separaten Abstellraum. Der Hauswirtschaftsraum verbindet das Wohnhaus mit der Doppelgarage und sorgt so für kurze Wege.

Der Grundriss umfasst zwei flexibel nutzbare Zimmer sowie einen Elternbereich mit Schlafzimmer, zwei Ankleiden und direkt angeschlossenem Bad. Ein weiteres Gäste-Bad ist zentral im Haus angeordnet. Die nach Süden orientierte Terrasse ist mit einer Aluminium-Terrassenüberdachung geplant und dient als erweiterter Wohnbereich im Freien.

In der Ausstattung sind eine Photovoltaikanlage mit ca. 8,19 kWp sowie eine Luft-Wasser-Wärmepumpe enthalten. Die Innenausstattung – insbesondere Bodenbeläge, Sanitärgegenstände und Innentüren – kann im Rahmen der Bemusterung ausgewählt werden. Sonderwünsche können nach Absprache noch bis Ende Januar 2026 berücksichtigt werden.


Ausstattung

Ausstattungsmerkmale (inklusive):
- 2,80 m Raumhöhe, bodentiefe Fenster mit 2,50 m Höhe
- Villeroy & Boch-Fliesen in Bad- und Funktionsbereichen
- Parkettboden im Wohnbereich
- Fußbodenheizung im gesamten Haus
- Luft-Wasser-Wärmepumpe als zentrales Heizungssystem
- LED-Deckenspots in nahezu allen Räumen, einschließlich Garage
- elektrischen Rollladen
- Schalter- und Steckdosenprogramm von Busch-Jaeger
- Sanitärausstattung von Grohe
- Direkter Zugang von der Doppelgarage ins Haus
- Terrassenüberdachung aus Aluminium und VSG-Glas
- Regenwasserzisterne (nicht mehr enthalten)
- Individuelle Auswahlmöglichkeiten im Rahmen der Bemusterung, zB Bodenbeläge bis 50,00 €/qm Listenpreis.

Eckdaten:
- Wohnfläche: 135 m²
- Grundstück: ca. 567 m²
- 3 Schlafzimmer bzw. 2 Zimmer + Elternbereich
- Ankleiden: 2
- Bäder: 1 Bad en Suite + Gäste-Bad
- Massive Doppelgarage

Fertigstellung: Juli 2026


Sonstiges

JOWI Immo GmbH
Sitz und Registrierung: Nürnberg, AG Nürnberg HRB 44975

vertreten durch ihren Geschäftsführer
Josef H. Sechser M. Sc. Real Estate

Ostendstraße 161, 90482 Nürnberg
Telefon +49 172 82 56 401
kontakt(at)jowi-immo.de

Erlaubnis nach § 34c Absatz 1 Satz 1 Nummer 3a Gewerbeordnung (Bauträger)
Aufsichtsbehörde: Industrie- und Handelskammer für München und Oberbayern, Max-Joseph-Str. 2, 80333 München


Lage

Lagebeschreibung

Der Bungalow entsteht im Neubaugebiet Gleitsweg in Irchenrieth. Der Standort verbindet kurze Wege zu Einkaufsmöglichkeiten, Schulen, Kinderbetreuung sowie medizinischer Versorgung. Die Nähe zu Weiden i.d.OPf. und der A6 ermöglicht eine gute Anbindung an regionale Arbeitgeber und umliegende Städte.

Die Umgebung ist geprägt von Wohnbebauung, Grünflächen und einer ruhigen Nachbarschaftsstruktur und eignet sich für Familien wie auch für Personen, die ein ebenerdiges Wohnkonzept suchen.

ohne-makler.net
Anbieter:
Angebot von JOWI Immo GmbH

Anbieter kontaktieren