Ausstellungs-und Bürofläche
Büro 1
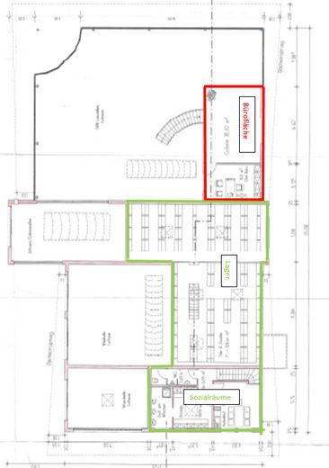
Grundriss OG
Außenansicht
Ausstellungs-und Bürofläche
Büro OG
Grundriss EG

Möblierte Ausstellungs- und Bürofläche in zentraler Lage in Achern / erweiterbar um Werkstatt

Get the full address via contact
77855 Achern – Achern
Baden-Württemberg
2500 €
Rent without service charge
TraumImmo-ID: C52FGUJ
Partner-ID: 382222
Partner-Property by: ohne-makler.net
Contact:
Angebot vom Eigentümer

Contact now

Information

  • Type: Department Store
  • Free From: 01.10.2025
Handicapped Accessible

  • Construction Year: 2000
  • Condition: WellKept
  • Storeys: 2

Rent & Utilities

Rent2500 €
Courtageno courtage for buyers

About this dream store

Property Description

Diese moderne und lichtdurchflutete Büro- und Ausstellungsfläche im Gewerbegebiet von Achern bietet Ihnen auf 220 m² eine ideale Arbeitsumgebung. Profitieren Sie von einer hervorragenden Ausstattung und einer zentralen Lage.


Highlights:
•Optisch ansprechend: Ein modernes und gut gepflegtes Gebäude, welches durch raumhohe Verglasung optisch heraussticht und viel Tageslicht bietet.
•Geräumige Büro- und Ausstellungsflächen: Viel Platz für Büros, Ausstellungen oder zusätzliche Arbeitsbereiche.
•Möblierung: Sorgenfrei einziehen - Hochwertige Ausstattung: Klimaanlage, Küchenzeile, Sonnenschutz, Stehtisch inkl. Barhocker, Ledersitzlounge, TV, Catering-Sideboard inkl. Kühlschrank, Besprechungstisch, Glasvitrine, Büromöbel, Schränke, Sitzmöbel, Akustik Deckensegel und Vieles mehr im Mietpreis inklusive.
•Klimaanlage: Das Gebäude ist mit einer modernen Klimaanlage ausgestattet.
•Sicherheitsausstattung: Videoüberwachung auf dem gesamten Außenanlagen-Gelände vorhanden.
•Energieversorgung: Eine Photovoltaikanlage wird in Kürze installiert, um Ihre Stromkosten zu senken.
•Verkehrsanbindung: Sehr gute Anbindung an das Verkehrsnetz – in nur fünf Fahrminuten erreichen Sie die Autobahn Richtung Karlsruhe / Basel.
•Zentrumsnähe: Kurze Wege ins Stadtzentrum von Achern – alles, was Sie brauchen, ist in der Nähe.
•Erweiterbar um Werkstatt: Angrenzend an die Büro-und Ausstellungsfläche befindet sich eine 670 m² große Werkstatt inkl. Lagerfläche, Sozialräume und großer Annahmefläche (Fläche auf dem Grundriss in grün markiert), welche optional ebenfalls mitvermietet werden kann.

Die Büro-und Ausstellungsfläche (auf dem Grundriss in rot markiert) befindet sich in einem sehr guten Zustand.

Fünf Parkplätze sind bei der Anmietung der gesamten 220 m² im Mietpreis inbegriffen. Weitere Stellplätze können für 20 € / Stellplatz monatlich optional hinzugebucht werden.

Es fällt keine Maklerprovision an.

Für weitere Informationen oder zur Vereinbarung eines Besichtigungstermins kontaktieren Sie uns bitte.

Wir freuen uns auf Ihre Anfrage!


Location

Location description

Achern hat etwa 25.000 Einwohner und ist somit eine mittelgroße Stadt. Die Stadt ist bekannt für ihre malerische Lage am Fuße des Schwarzwaldes und bietet eine hohe Lebensqualität. Durch ihre zentrale Lage im Südwesten Deutschlands, in unmittelbarer Nähe zu den größeren Städten Karlsruhe und Straßburg, profitiert Achern von einer hervorragenden Verkehrsanbindung und einer hohen Attraktivität für Unternehmen. Durch die Nähe zu Autobahnen und internationalen Flughäfen, insbesondere dem Flughafen Karlsruhe/Baden-Baden, ist Achern für Unternehmen von überregionaler Bedeutung gut erreichbar.
Ein weiterer wichtiger Aspekt von Achern ist die gute Anbindung an den öffentlichen Nahverkehr. Die Stadt liegt an der Bahnstrecke von Karlsruhe nach Freiburg, was eine schnelle Erreichbarkeit anderer Städte ermöglicht.
Insgesamt bietet Achern ein dynamisches und wachsendes wirtschaftliches Umfeld, das sowohl großen Unternehmen als auch kleinen und mittelständischen Betrieben hervorragende Perspektiven bietet. Die Kombination aus günstiger Lage, guter Infrastruktur und vielfältigen Branchen macht die Stadt zu einem bedeutenden Wirtschaftsstandort in der Region.

ohne-makler.net
Contact:
Angebot vom Eigentümer

Contact now