Gartenseite Sicht aus SW
RMH, SW, im Nov. um ca. 18 Uhr
WZ Blick Richtung Küche
Küche
Gäste-WC
Eingangsseite mit Glascarport
Terrasse
WZ mit Essbereich
Gaste-WC
DG-Studio, 3 Fenster
Blick vom Balkon
2. Carport mit Stellplatz
Blick vom Gartenweg SW
eigener Weg zum Garten
Innenmaße RMH
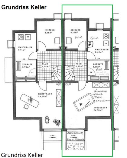
Keller
Erdgeschoss
1. Stock
auch für Bus extra-lang
Eingangsseite
Kinderzimmer m. Balkon
Treppenhaus
... vom Haus zum Wald
DG-Studio
Schnitt
Lageplan
3-Spänner, Gartenseite
Bad m. Wanne u. Dusche
Studio, Blick zur Zugspitze

Pilsensee: Großes, gepflegtes Einfamilien-RMH, 141 m² Wfl. mit großem Carport

Get the full address via contact
82229 Starnberg, Seefeld – Hechendorf am Pilsensee
Bayern
998.000 €
Selling Price
141 m²
Living Area
5
Rooms
TraumImmo-ID: WDVE2BU
Partner-ID: 403448
Partner-Property by: ohne-makler.net
Contact:
Privat von Rita Schimanek

Contact now

Information

  • Type: Mid-Terrace Town House
  • Living Area ca.: 141 m²
  • Free From: sofort
  • Rooms: 5
CellarGuest-ToiletBalconyGarden

  • Property Area: 302.0
  • Construction Year: 1998
  • Condition: WellKept
  • Heating Type: CentralHeating
  • Firing Type: Gas
  • Storeys: 3
  • Usable Floor Space: 195.0
  • Bathrooms: 1.0

Selling Price & Extra Costs

Selling Price998.000 €
Courtageno courtage for buyers

About this dream house

Property Description

Hier wohnen Sie in sonniger, absolut ruhiger und traumhafter Lage mit idealer Anbindung an München. Das großzügige und gepflegte Haus ist in Hechendorf am Pilsensee, im Westen von München (LKR Starnberg). Es sind nur wenige Minuten zu Fuß zum See. Das Haus ist sehr gut geeignet für eine große Familie, denn es hat 141 m² reine Wohnfläche und ist voll unterkellert, mit taghellem Hobbyraum.
Das Haus ist durchgehend vom Eigentümer bewohnt (Nichtraucher, keine Haustiere).
Es wurde 1998 in solider Ziegel-Massivbauweise errichtet, ist voll unterkellert (weiße Wanne) und hat 2 Vollgeschosse sowie ein voll ausgebautes Dachgeschoss mit Satteldach, eine Dachgaube (Fenster) und zwei Dachflächenfenster.
o Die Wohnfläche beträgt 141,38m².
o Die Nutzfläche (Gesamtfläche) des voll unterkellerten RMHs ist 195,34 m², inkl. 25m²
wohnraummäßig ausgebautem Hobbyraum mit 2 großen Fenstern und
Lichtgraben.
• Größe des Hausgrundstücks: 154m² plus 11,6m² für den zweiten
Stellplatz mit Carport.
• Gesamtgrundstück: 302m², inkl. 1/13 Anteil an der
Gemeinschaftsfläche.

Das RMH bietet Ihnen ein großzügiges Wohnen in 5 Zimmern:
o Erdgeschoss mit Diele, Gäste-WC, Küche und großem Wohn-Esszimmer,
o 1. OG geräumiges Bad mit großer Wanne + Dusche, 1 Schlafzimmer,
2 große Kinderzimmer (eines ist mit Balkon),
o Dachgeschoss mit hellem, großen Studio mit 3 Fenstern, Anschlüsse für eine Dusche +
WC bzw. Küche sind im Boden an geeigneter Stelle vorhanden.
o Keller mit Heizungs- und Waschraum, Lagerraum und wohnraummäßig ausgebautem
Hobbyraum mit 2 großen Fenstern und Lichtgraben.
o SW-Balkon mit Glasüberdachung.
o Eingangsbereich mit Glasüberdachung.

Es gibt zwei sehr massiv gebaute, gepflegte Holz-Carports:
o Einer ist direkt am Haus angebaut und hagelsicher mit
Verbundglas-Eindeckung ausgeführt, sogar passend für einen Bus in
extra-Langversion bis ca. 2,20m Höhe und im Kaufpreis inbegriffen.
o Der zweite Carport mit Stellplatz ist direkt gegenüber des
Eingangsbereichs und kann für 19 000.- € erworben werden.

-> Aufgrund des Baujahres 1998 ist das Haus - im Gegensatz zu älteren Häusern -
garantiert ohne Altlasten!
-> Der zeitgemäße Grundriss ist vielseitig nutzbar.
Die gesamte Wohnanlage sehen Sie im Freiflächengestaltungsplan.
Die Immobilie ist erschließungsbeitrags- u. kostenerstattungsbetragsfrei.
Für die Finanzierung: Der Gesamt-Beitrag in die Eigentümerkasse beträgt pro Jahr nur 230 € inkl. Rücklagenbildung.


Furnishing

Ausstattung:
- Großer Wohn- und Essbereich mit bodentiefen Fenstern,
- Küche mit großem Fenster,
- geräumiges Badezimmer mit Duschkabine und großer Badewanne,
- separates Gäste-WC mit Fenster,
- hochwertiger Echtholz-Parkettboden (Kanadischer Ahorn) im
Wohn-Essbereich und DG-Studio,
- Süd-West-Balkon mit Verbundglas-Überdachung,
- Diele, Küche. WC, Bad und Balkon haben Fliesenboden,
- Bad und WC sind raumhoch gefliest,
- Kellerboden ist teilweise gefliest + Teppich im Hobbyraum.
- Hobbyraum, Heizkörper, 2 große Fenster und Lichtgraben.
- Alle Fenster im EG und 1.OG haben Rollläden.
- Das DG ist komplett mit Natur-Rigipsplatten verkleidet.
- Alle Blechteile am Dach sind aus Kupferblech.
- Schneelawinensicherung am Dach (Kupfer)
- Alle Metallteile des Carports am Haus sind aus nicht-rostendem Stahl.
- Alle Wasserleitungen sind ebenfalls aus nicht-rostendem Stahl.
- Netzwerkkabel-Anschlussdosen befinden sich in fast allen
Räumen inkl. im Hobbyraum.
- Zudem gibt es 3 Anschlussdosen für Festnetztelefon.

Heizungsanlage:
- Im Keller ist seit Sept. 2024 eine neue Gas-Brennwert-Heizanlage
für Heizkreis- und Brauchwasser mit Außensteuerung installiert.
- Die Heizung arbeitet Raumluft-unabhängig, d.h. das Fenster im
Heizungsraum kann geschlossen bleiben (wichtig im Winter).
- Ein Hybridbetrieb, z. B. mit Luft-Wärmepumpe, etc., ist durch
Modulnachrüstung (Huckepackmodul) möglich.
- Der Brennwertkessel ist geeignet für zukünftigen 20 %
Wasserstoffzusatz im Erdgas.
- 5 Jahre Systemgarantie durch Wahl der Komponenten und Wartung.
- Zentralheizung mit Raumthermostatventilen,
- Einbau eines 2. Kamins (z.B. für einen Schwedenofen) ist in den
Betondecken vorgesehen!


Other

Infrastruktur:
München erreichen Sie schnell über die Lindauer Autobahn (Anschlussstellen Inning, Wörthsee oder Gilching). Zum S-Bahnhof sind es mit dem Rad ca. 5 Minuten. Der Ort bietet Ihnen Einkaufsmöglichkeit mit Imbiss und Café, Apotheke, Ärzte inkl. Zahnärzte und zwei Gaststätten. Darüber hinaus gibt es einen Kindergarten an der Schule, ein modernes, großes Kinderhaus mit Kindergarten und Kinderkrippe sowie eine Grundschule, Sportvereine und ein Fitnessstudio.
In 3 Minuten sind Sie zu Fuß an der Haltestelle für Busse in verschiedene Richtungen. Die Realschule und das Gymnasium im nahen Herrsching (6km) sind ebenfalls mit Fahrrad, Bus oder S-Bahn schnell erreichbar.
Für Inlineskaten / Skateboard und Basketball bietet der Ort einen großen Sportplatz und einen weiteren an der Schule. Wochenmarkt und Bürgerstadel für Veranstaltungen runden das Angebot ab.

Hier wohnen Sie mitten im Urlaubsland umgeben von Wäldern. Den Pilsensee erreichen Sie zu Fuß in wenigen Minuten. Zudem sind der Wörthsee (Paradieswinkel), das Erholungsgelände Oberndorf am Wörthsee mit Gaststätte und der Ammersee im direkten Umfeld. Es gibt viele Möglichkeiten für Wandern, Baden, Windsurfen, Segeln, Stand-up, Moutainbiken.
Weitere umfangreiche Infrastruktur gibt es in 2 km Entfernung mit dem Rad gut erreichbar: weitere Schule, einen großen Supermarkt, Metzgerei mit Gaststätte, drei Bäcker, Pizzeria, zwei Cafés, Getränkemärkte, Apotheke, Ärzte und Zahnärzte, Fitnessstudios sowie diverse Geschäfte und ein Klinikum. Ein weiteres Klinikum ist in 6km Entfernung in Herrsching.
Das Schloss Seefeld mit Gaststätte und Biergarten, mit Kino Breitwand und interessanten Kulturveranstaltungen lädt Sie für die Freizeit ein. Dort beginnt auch der romantische König-Ludwig-Weg, der Sie vom Schloss Seefeld zum Kloster Andechs (mit Biergarten) führt.
Arbeiten, Wohnen, Familie und eine aktive oder entspannte Freizeit sind hier in der absolut ruhigen Lage sehr gut in Einklang zu bringen.
Ein ausführlicheres Exposé erhalten Sie gerne auf Anfrage per E-Mail.


Location

Location description

Sie wohnen hier in Seefeld-Hechendorf im beliebten 5-Seenland, im Westen von München, mitten im Freizeitland und doch stadtnah.
In nur wenigen Minuten erreichen Sie zu Fuß das Strandbad Pilsensee.
Der Ort ist direkt umrahmt von 3 Seen und Wäldern und ein idealer Wohnort für Familien, Naturliebhaber und Freizeitsportler (Schwimmen, Joggen, Wandern, Montainbiken, Windsurfen, Segeln, Stand-up, etc.). Im Umfeld ist weiter der Ammersee in 15 Min. schnell zu erreichen.
Hechendorf ist ein Ortsteil von 82229 Seefeld mit insgesamt ca. 7600 Einwohnern und liegt am Hechendorfer Höhenrücken mit 615 m ü. N.N .

Das Haus befindet sich in absolut ruhiger Lage inmitten von viel Grün. Das Haus grenzt auch nicht direkt an eine Straße (siehe Freiflächengestaltungsplan). Im größeren Umfeld besteht zudem eine Zone 30.
Die 13 Reihenhäuser der Wohnanlage stehen auf einer reichlich begrünten, großzügigen Gesamtfläche. Zur Gemeinschaftsfläche gehört ein kleiner Spielplatz und ein eingezäunter Weiher. Jeder Eigentümer besitzt 1/13-tel Anteil an der Gemeinschaftsfläche.
Die Giebelausrichtung ist grob gesagt NO bzw. SW, genau ist es ONO und WSW., das heißt etwas mehr Morgen- und mehr Abendsonne.
-> Vom Gaubenfenster im DG aus genießen Sie einen außergewöhnlichen Panoramablick nach Süden auf das Kloster Andechs und die Alpenkette mit der Zugspitze (siehe Foto).
-> der Wald ist praktisch vor der Haustüre (siehe Foto);

Mit diesen Pluspunkten und der guten Anbindung nach München ist das Haus ideal für ein angenehmes, entspanntes Leben. Aufgrund der Lage ist es zudem auch sehr gut vermietbar.

ohne-makler.net
Contact:
Privat von Rita Schimanek

Contact now