Aussen
Innen
Rechte am Foto bei OWL GmbH
Innen
Lager
Verkauf

Ladenfläche in Bestlage

Marktstraße 33
37671 Höxter – Höxter
Nordrhein-Westfalen
TraumImmo-ID: 6BMVG2N
Partner-ID: 415076
Partner-Objekt von: ohne-makler.net
Anbieter:
Angebot von Verwaltungs GbR

Anbieter kontaktieren

Information

  • Typ: Kaufhaus
  • Etage: -1
  • Bezugsfrei ab: sofort
Keller

  • Grundstücksfläche: 200.0
  • Zustand: PropertyConditionNegotiable
  • Heizart: CentralHeating
  • Stockwerke: 2

Miete & Nebenkosten

Provisionkeine Provision für Käufer

Über diesen Traum-Laden

Objektbeschreibung

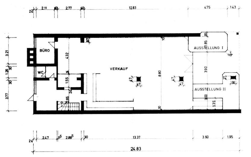
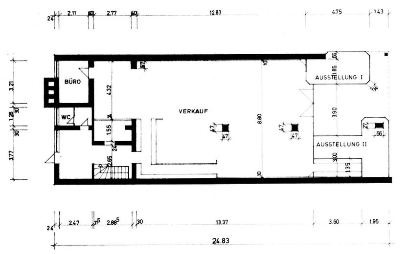
Die Ladenfläche verbindet alles, was ein attraktiver
Innenstadtstandort braucht: Rund 122 m² ebenerdiger
Verkaufsraum mit großer, heller Schaufensterpassage laden
Passanten direkt aus der Fußgängerzone ein. Hinter dem
Verkaufsbereich stehen ein praktisches Lager (ca. 46 m²) sowie
ein großzügiger Keller (ca. 193 m²) bereit, um War zu verstauen
oder Aktionen vorzubereiten. Ein separates Büro und ein
Personal-WC machen den Alltag unkompliziert. Dank des klaren
Grundrisses lässt sich die Fläche flexibel gestalten – ob für
Modegeschäfte, Schuhläden, Concept Stores, Kosmetikstudios,
Reformhäuser, Geschenk- und Dekoartikel, Optiker,
Mobilfunkshops, Buchläden, oder auch als Showroom für
Dienstleister, Start-ups und Onlinehändler mit stationärem
Angebot. Die Lage gut geeignet für Franchisepartner, Gründer,
Filialisten oder Inhaber geführt


Ausstattung

aktuell ausgetastet für ein Schuhgeschäft


Sonstiges

ca. 122 m² ebenerdige Verkaufsfläche + 37 m² Schaufenster­passage
ca. 46,5 m² Lager ebenerdig, zusätzlich ca. 192,5 m² Keller­fläche
breite, lichtstarke Fensterfront in der Fußgängerzone
klarer, rechteckiger Grundriss – flexible Nutzung separates Büro und Sanitär vorhanden Verfügbar nach Vereinbarung. Konditionen auf Anfrage.


Lage

Lagebeschreibung

Lage mitten in der Höxteraner Innenstadt, direkt an der belebten
Fußgängerzone zwischen Marktplatz und Weserstraße. Der
Standort profitiert von hoher Passantenfrequenz durch
umliegende Fachgeschäfte, Cafés und Wochenmarktstände

ohne-makler.net
Anbieter:
Angebot von Verwaltungs GbR

Anbieter kontaktieren