Catering, Küche, Altenversorgung mit Komplettausstattung nahe A4 und A9, Stadtroda/Hermsdorf

Die vollständige Adresse erhalten Sie vom Anbieter
07646 Mörsdorf
Thüringen
300 €
Kaltmiete
2
Zimmer
TraumImmo-ID: SUPT739
Partner-ID: 118833480
Partner-Objekt von: RegionalImmobilien24
Anbieter:
Anonym

Anbieter kontaktieren

Information

    • Zimmer: 2

    • Grundstücksfläche: 40.0

    Miete & Nebenkosten

    Miete300 €
    Nebenkosten150 €
    Gesamtmiete450 €
    Provisionkeine Provision für Käufer

    Über dieses Traum-Spezialgewerbeobjekt

    Objektbeschreibung

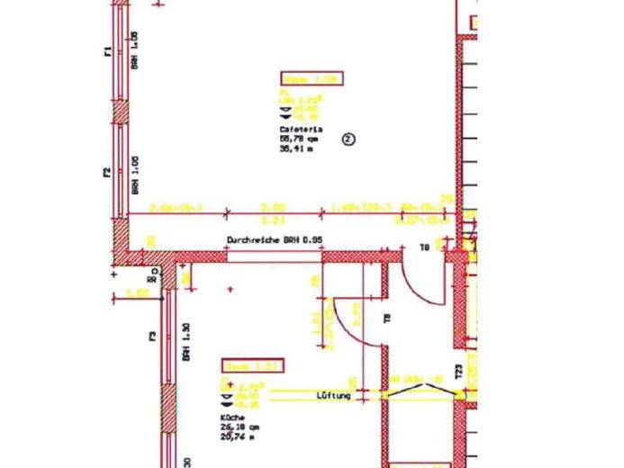
    Die zu vermietenden Küchen-, Cateringräume befinden sich im Erdgeschoss eines Bürogebäudes.
    Zusätzlich kann im Erdgeschoss bei Bedarf noch eine komplett eingerichtete Kantine/ein Speiseraum zur Mitarbeiterversorgung des Betriebes mitgenutzt werden.

    Für die Einrichtung muss zusätzlich eine Pauschalmiete (verhandelbar) übernommen werden.
    Den Umfang des vorhandenen, hochwertigen Edelstahlinventars entnehmen sie bitte vorerst den Bildern.

    Folgende Räume stehen zur Verfügung:

    Küche mit ca. 26,18 m²
    Lagerraum mit ca. 11,97 m²

    zur Mitbenutzung:
    Kantine möbliert ca. 56 m²
    WC/Dusche Damen
    WC/Dusche Herren

    Nettokaltmiete: 300,- EUR
    Nutzungspauschale für
    Nebenräume zur Mitbenutzung 50,- EUR
    Miete Inventar + Geräte 100,- EUR
    Nebenkostenvorauszahlung: 150,- EUR zzgl. Stromkosten
    PKW-Stellplatz: 20,- EUR optional
    alle Positionen jeweils zzgl. Mwst.
    Kaution: drei Nettomieten
    Mietbeginn: ab sofort möglich
    Mindestmietzeit: zwei Jahre

    PKW-Stellplätze sind in ausreichender Anzahl vorhanden.
    Ein schneller Internet-Anschluss ist möglich (mit bis zu 50 MBit/s).

    Besichtigungen können ab sofort über das Maklerbüro vereinbart werden.
    Zur Kontaktaufnahme füllen Sie bitte das ausführliche Kontaktformular von dieser Angebotsseite aus.

    Weitere Objekte in gewünschter Lage finden Sie unter https://www.immobilien.de/whitelabel/agentlisting/394009.html

    Eingrenzende Angebote an verfügbaren Kauf- oder Mietobjekten, Details zu Objekten und Besichtigungstermine erhalten Sie per Email unter post@immomobil.com.


    Lage

    Anbieter:
    Anonym

    Anbieter kontaktieren