Aktivsonnenhaus urban - Modernes, unabhängiges Wohnen mit Solararchitektur in historischer Altstadt!!

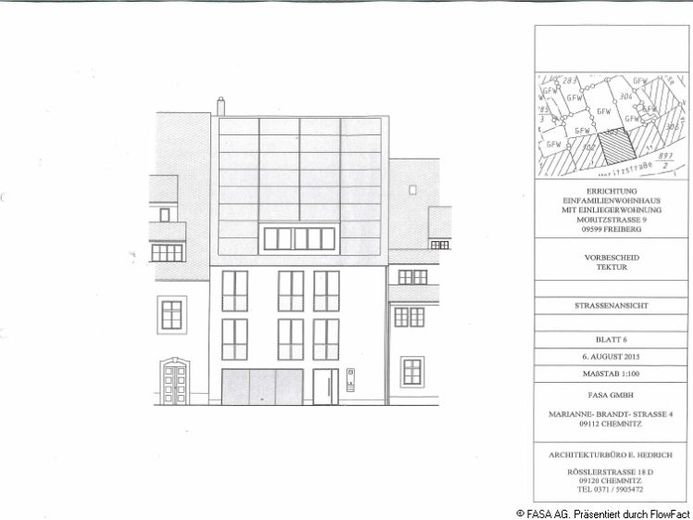
Moritzstr. 9
09599 Freiberg
1.118.700 €
Kaufpreis
275 m²
Wohnfläche
7
Zimmer
TraumImmo-ID: YTCRSZU
Partner-ID: 037515177
Partner-Objekt von: RegionalImmobilien24
Anbieter:
Anonym

Anbieter kontaktieren

Information

  • Wohnfläche ca.: 275 m²
  • Zimmer: 7

  • Grundstücksfläche: 270.0

Kaufpreis & Kosten

Kaufpreis1.118.700 €
Provisionkeine Provision für Käufer

Über dieses Traum-Haus

Objektbeschreibung

Eine der letzten Baulücken in der historischen Freiberger Innenstadt - die Moritzstraße 9 - eingerahmt von denkmalgeschützen Häusern, wird mit einem weitestgehend wärmeautarken Aktivsonnenhaus (vgl. auch www.aktivsonnenhaus.de) bebaut. Die Besonderheit wird der spannende Kontrast zwischen angrenzenden Denkmalhäusern und dem modernen Baustil des Aktivsonnenhauses sein, welches den nahezu gesamten Wärmebedarf für Heizung und Warmwasser aus der Sonnenenergie bezieht. Die geplante Wohnfläche, derzeit aufgeteilt in 3 Wohnungen, wird mit ca. 275m² vorausgeschaut. Zusätzliche Nebenflächen sowie die ebenerdige Doppelgarage beinhalten eine weitere Nutzfläche von ca. 64m². Die Option, das Gebäude auch als Einzelhaus oder auch zur gewerblichen Nutzung zu errichten, prüfen wir ebenso gern wie die Option der Wiederherstellung des historischen Kellers.


Lage

Anbieter:
Anonym

Anbieter kontaktieren