| Kaufpreis | 485.000 € |
|---|---|
| Provision | keine Provision für Käufer |
Das denkmalgeschützte Mehrfamilienhaus aus dem Jahr 1900 umfasst eine Gesamtwohnfläche von ca. 470 m². Das gepflegte Gebäude steht auf einem Grundstück von ca. 245 m² und präsentiert sich in einem ausgezeichneten Zustand.
Der praktische Grundriss ermöglicht flexible Gestaltung und Nutzung der Räume. Alle Etagen sind mit Laminat ausgestattet, was ein einheitliches und wohnliches Ambiente schafft.
Die Wohnungen sind teilweise mit einem gemütlichen Balkon ausgestattet. Das Haus ist unterkellert, was zusätzlichen Stauraum und vielseitige Nutzungsmöglichkeiten bietet.
Die Jahresnettokaltmiete (Soll) beträgt ca. 29.400 €. Aktuell befindet sich eine Wohnung in der Vermietung. Diese ist ab 01.05.2026 wieder vergeben.
Wir freuen uns auf Ihre Anfrage und stellen Ihnen gerne weitere Informationen zur Verfügung.
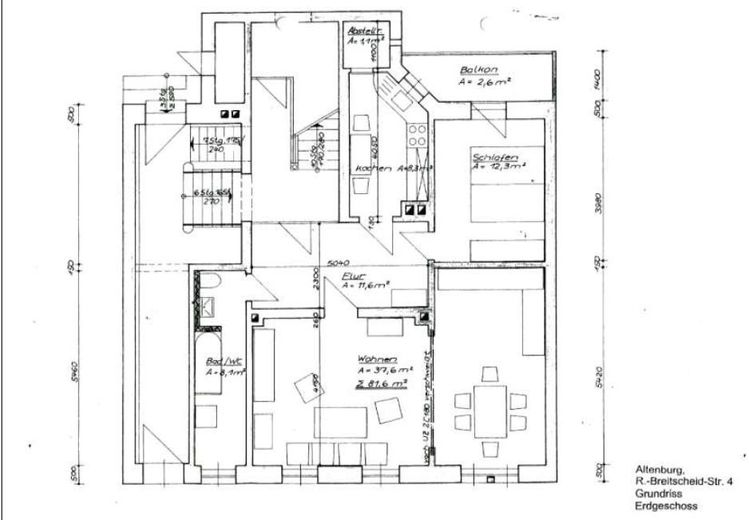
Erdgeschoss:
WE 1 : 3 Zimmer, Küche, Bad (81,60 m²)
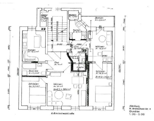
1. Obergeschoss:
WE 2: 2 Zimmer, Küche, Bad (59,40 m²)
WE 3: 2 Zimmer, Küche, Bad (44,30 m²)
2. Obergeschoss:
WE 4: 4 Zimmer, Küche, Bad (103,00 m²)
3. Obergeschoss:
WE 5: 2 Zimmer, Küche, Bad (59,40 m²)
WE 6: 2 Zimmer, Küche, Bad (44,30 m²)
Dachgeschoss:
WE 7: 2 Zimmer, Küche, Bad (39,10 m²)
WE 8: 2 Zimmer, Küche, Bad (38,90 m²)
Das Kaufobjekt wird im gegenwärtigen Zustand verkauft. Der Verkäufer übernimmt keine Gewährleistung für die Beschaffenheit, Freiheit von Sachmängeln oder die Größe des Kaufobjekts. Der Verkauf erfolgt unter Ausschluss jeglicher Sachmangelhaftung. Dies gilt nicht für Arglist oder zugesicherte Eigenschaften. Das Immobilienangebot ist freibleibend. Irrtum und Zwischenverkauf bleiben vorbehalten.
Interessiert? Dann senden Sie uns eine Anfrage.
Das Mehrfamilienhaus befindet sich nahe des Zentrums von Altenburg. Die Stadt liegt in der Mitte des Städtedreiecks Leipzig, Chemnitz und Gera. Lebensmittelgeschäfte, Einkaufsmöglichkeiten des täglichen Bedarfs, gastronomische Einrichtungen, Kindergärten, Schulen, Ärzte, Apotheken, Banken uvm. befinden sich in unmittelbarer Nähe und sind mit den öffentlichen Verkehrsmitteln erreichbar. Die Wohnung ist sehr verkehrsgünstig gelegen, schnelle Anbindung an z.B. die A 4 und A 72.