| Kaufpreis | 450.000 € |
|---|---|
| Provision | keine Provision für Käufer |
sofort bebaubar - Baugenehmigung vom Sept. 2025 liegt vor (Freisteller Bebauungsplan Nr. 71).
Optimale Nutzung des südorientierten Grundstücks durch individuell geplante Doppelhaushälfte für 2 eigenständige Wohneinheiten als Energieeffizienzhaus 55
Garage unterkellert.
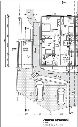
Wohneinheit 1 (zwei untere Stockwerke): 139 m² Wohnfläche
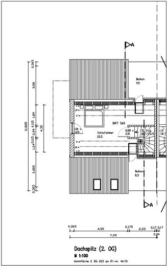
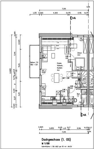
Wohneinheit 2 (zwei obere Stockwerke): 89 m² Wohnfläche
Baugrundstück 486 m² - voll erschlossen an öff. Straße mit Wasser/Kanal/Strom/T-com
Baugrundgutachten, Entwurfsstatik und Bewehrungspläne liegen bereits vor
Denkmalschutzrechtliche Erlaubnis liegt vor
Die Planunterlagen für die Baugenehmigung, Grundstücksgröße, Wohnflächen etc. liegen digital vor und können im weiteren Verlauf eingesehen werden
Ich verkaufe ausschließlich privat und wünsche keine Maklerangebote. Sämtliche Bilder in diesem Exposé sind urheberrechtlich geschützt und dürfen nicht durch Dritte verwendet bzw. weitergegeben werden.
Eisenhofen mit rund 900 Einwohnern liegt im schönen Glonntal, mitten im ruhigen Hügelland zwischen Dachau und Altomünster, nordwestlich von München. Der S-Bahnhof Erdweg (S2) befindet sich in 950 m Entfernung und bietet eine direkte Zugverbindung nach München im 30-Minuten-Takt. Der Anschlusspunkt an die A8 Sulzemoos ist rund 11 km entfernt.
Zum Erholen laden in Eisenhofen die vielen Wander- und Radwege ein. Durch den anhaltenden Zuzug in die Metropolregion München wird die Infrastruktur ständig weiterentwickelt, wie z.B. die Betreuung für Kinder, Freizeit- und Sportangebote und Einkaufsmöglichkeiten.
Die weiterführenden Schulen wie Realschule, Gymnasium und FOS befinden sich in Markt Indersdorf, nur 2 S-Bahnstationen entfernt. Die Grund- und Mittelschule, ein EDEKA-Markt, Apotheke, Rathaus, Gaststätten, Sportverein, Fitness-Center etc. befinden sich gut einen Kilometer entfernt im Hauptort Erdweg.